Bénéficiez des services de nos partenaires locaux soigneusement sélectionnés
pour vous accompagner dans votre parcours d'achat immobilier

Appartement 123m² à bussy-saint-georges

— Bussy-Saint-Georges 77600 —
435 000 €
123 m²
5 pièces
parking

Nos partenaires locaux
Idéalement située à Bussy-Saint-Georges dans un secteur calme, verdoyant et proche de toutes commodités.

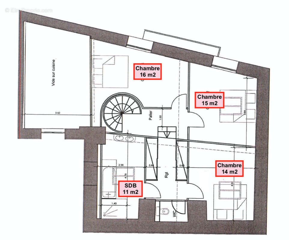
Appartement en duplex de 5 pièces refait à neuf avec les dernières normes de construction, d'isolation, de chauffage et d'équipement.

D'une surface de 123 m2 habitable, vous profiterez de grand volume pour chaque pièces :

- Séjour avec cuisine ouverte d'environ 55 m2
- Suite parentale d'environs 15 m2 avec salle d'eau privative
- 2 grandes chambres
- 2 Salles de bains

Coté équipements et prestations :

- Pompe à chaleur air-air
- Isolation renforcé (thermique et phonique)
- Fenêtre double et/ou triple vitrage
- Volet roulant électrique
- Porte d'entrée en alu avec serrure sécurisé 3 points
- Robinetterie PORCHER
- WC suspendu
- Bac à douche 90x120 et ou x100
- Carrelage 60x60
- Parquet dans les chambres

Coté Avantage :

- Frais de notaire réduit, environs 2,5% (une économie d'environ 28.000 ¤)
- Possibilité de financement par le prêt à 0%
- Garantie décennale sur le gros ½uvre
- Garantie biennale sur les équipements

Photos non contractuelle (projection 3D) -----------------------------------------------------------------
Les informations sur les risques auxquels ce bien est exposé sont disponibles sur le site Géorisques : www.georisques.gouv.fr
------------------------------------------------------------------
Cette annonce immobilière est rédigée sous la responsabilité de votre agent commercial.
------------------------------------------------------------------
Envie de changer de carrière professionnelle, BL AGENTS recrute partout en France, parlons-en ou découvrez notre concept sur www.bl-agents-recrutement.fr Contactez Gael BERNARDET au [Coordonnées masquées]. N° RSAC : 2016AC00139 MEAUX
Voir plus

Référence: 36142
Bien en copropriété. Nombre de lots : 6.
Honoraires à la charge du vendeur.
Barème des honoraires

Prêt immobilier

Vous souhaitez connaître votre capacité d’emprunt et trouver le meilleur crédit immobilier ?
Réaliser une simulation gratuite

cuisine 1 - Appartement à BUSSY-SAINT-GEORGES
cuisine 1
Sejour M6 - Appartement à BUSSY-SAINT-GEORGES
Sejour M6
ch 3 - Appartement à BUSSY-SAINT-GEORGES
ch 3
SDe moderne 2 - Appartement à BUSSY-SAINT-GEORGES
SDe moderne 2
Chambre moderne - Appartement à BUSSY-SAINT-GEORGES
Chambre moderne
SDB moderne - Appartement à BUSSY-SAINT-GEORGES
SDB moderne
chambre enfant - Appartement à BUSSY-SAINT-GEORGES
chambre enfant
MV6 RDC - Appartement à BUSSY-SAINT-GEORGES
MV6 RDC
MV6 R+1 - Appartement à BUSSY-SAINT-GEORGES
MV6 R+1
Ce site est protégé par reCAPTCHA la Politique de confidentialité et les Conditions d’utilisation de Google s’appliquent.
Obtenir un prêt immobilier au meilleur taux ?

En poursuivant votre navigation sans modifier vos paramètres, vous acceptez l'utilisation de cookies susceptibles de réaliser des statistiques de visite. Cliquez ici pour plus d'informations