Appartement 3 pièces de 67 m² centre castelginest

— Castelginest 31780 —
259 000 €
67 m²
3 pièces

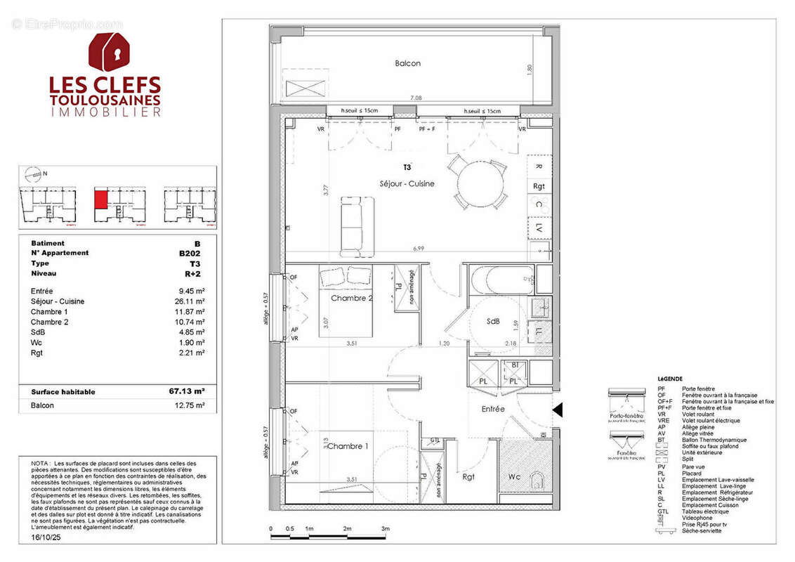
Appartement 3 pièces de 67 m² avec un balcon de 12.7 m² sans vis-à-vis bien exposé, le tout dans une petite résidence sécurisée proche du centre de CASTELGINEST et de ses commerces., dans un cadre naturel et verdoyant au coeur d'un vaste parc arboré. L'appartement dispose de : - une grande entrée avec placard, - un grand séjour lumineux ouvert sur cuisine, le tout donnant accès au balcon sans vis-à-vis. - deux chambres de 12 m² et 11 m² avec placards, - une salle de bain avec baignoire, - un espace rangement, - WC séparé, - une place de parking privative et sécurisée. Bénéficiez également d'une étude de financement offerte sous 48 heures ! Sébastien LARTIGUE LES CLEFS TOULOUSAINES
Voir plus

Barème des honoraires

Prêt immobilier

Vous souhaitez connaître votre capacité d’emprunt et trouver le meilleur crédit immobilier ?
Réaliser une simulation gratuite

Appartement à CASTELGINEST
Appartement à CASTELGINEST
Appartement à CASTELGINEST
Appartement à CASTELGINEST
Ce site est protégé par reCAPTCHA la Politique de confidentialité et les Conditions d’utilisation de Google s’appliquent.
Obtenir un prêt immobilier au meilleur taux ?

En poursuivant votre navigation sans modifier vos paramètres, vous acceptez l'utilisation de cookies susceptibles de réaliser des statistiques de visite. Cliquez ici pour plus d'informations