Bénéficiez des services de nos partenaires locaux soigneusement sélectionnés
pour vous accompagner dans votre parcours d'achat immobilier

Maison 67m² à plescop

— Plescop 56890 —
214 500 €
67 m² / 67 m²
3 pièces
jardin

Nos partenaires locaux
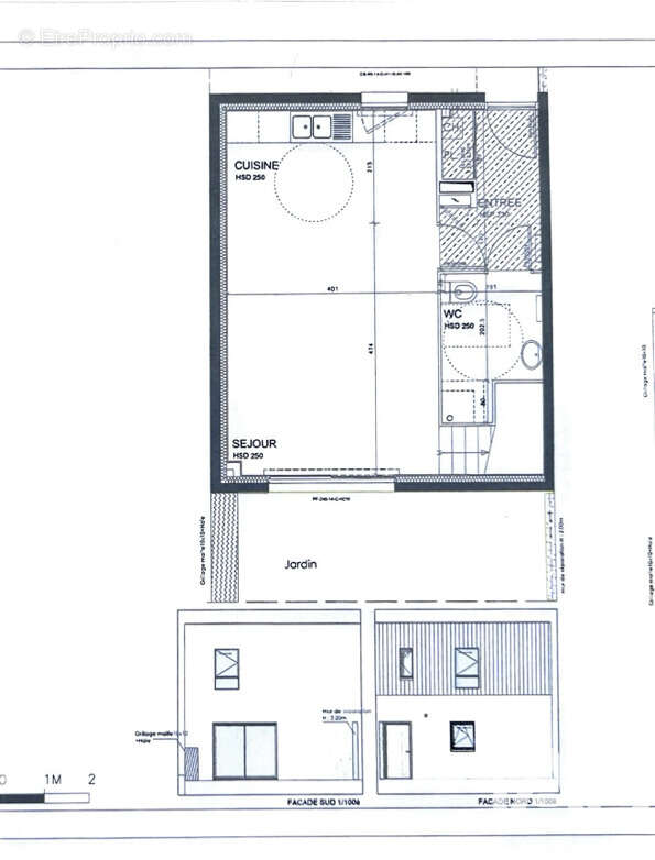
Iad France - Irène Lumineau vous propose : Venez découvrir cette maison T3 de 66,50 m², construite en 2013 à Plescop. Idéale pour un investisseur grâce à son locataire en place avec un bail courant jusqu'en mars 2027 (loyer actuel 600 ¤ / mois).
Cette maison mitoyenne d'un côté offre une pièce de vie lumineuse donnant sur le jardin, une cuisine aménagée ouverte, une entrée avec placard et des WC séparés au rez-de-chaussée.
À l'étage, vous trouverez deux chambres de bonnes dimensions, une salle d'eau ainsi qu'un dégagement.
La maison dispose d'un chauffage individuel au gaz, d'une place de stationnement privative sur la parcelle et d'un jardin.
Prévoir un rafraîchissement des peintures ainsi qu'une remise en état de la façade.

Pour organiser une visite ou obtenir plus d'informations, contactez Irène Lumineau.

Honoraires d'agence à la charge du vendeur.
Information d'affichage énergétique sur ce bien : classe ENERGIE C indice 79 et classe CLIMAT C indice 14. Les informations sur les risques auxquels ce bien est exposé, y compris l'obligation légale de débroussaillement, sont disponibles sur le site Géorisques : http://www.georisques.gouv.fr.
La présente annonce immobilière a été rédigée sous la responsabilité éditoriale de Mme Irène Lumineau mandataire indépendant en immobilier (sans détention de fonds), agent commercial de la SAS I@D France immatriculé au RSAC de VANNES sous le numéro 848151155, titulaire de la carte de démarchage immobilier pour le compte de la société I@D France SAS.
Informations LOI ALUR :
Honoraires charge vendeur. (gedeon_6727_32175776)
Voir plus

Référence: 1873029
Honoraires à la charge du vendeur.
DPE
A
B
C
D
E
F
G
GES
A
B
C
D
E
F
G

Prêt immobilier

Vous souhaitez connaître votre capacité d’emprunt et trouver le meilleur crédit immobilier ?
Réaliser une simulation gratuite

Photo 1 - Maison à PLESCOP
Photo 1
Photo 2 - Maison à PLESCOP
Photo 2
Ce site est protégé par reCAPTCHA la Politique de confidentialité et les Conditions d’utilisation de Google s’appliquent.
Obtenir un prêt immobilier au meilleur taux ?

En poursuivant votre navigation sans modifier vos paramètres, vous acceptez l'utilisation de cookies susceptibles de réaliser des statistiques de visite. Cliquez ici pour plus d'informations