Bénéficiez des services de nos partenaires locaux soigneusement sélectionnés
pour vous accompagner dans votre parcours d'achat immobilier

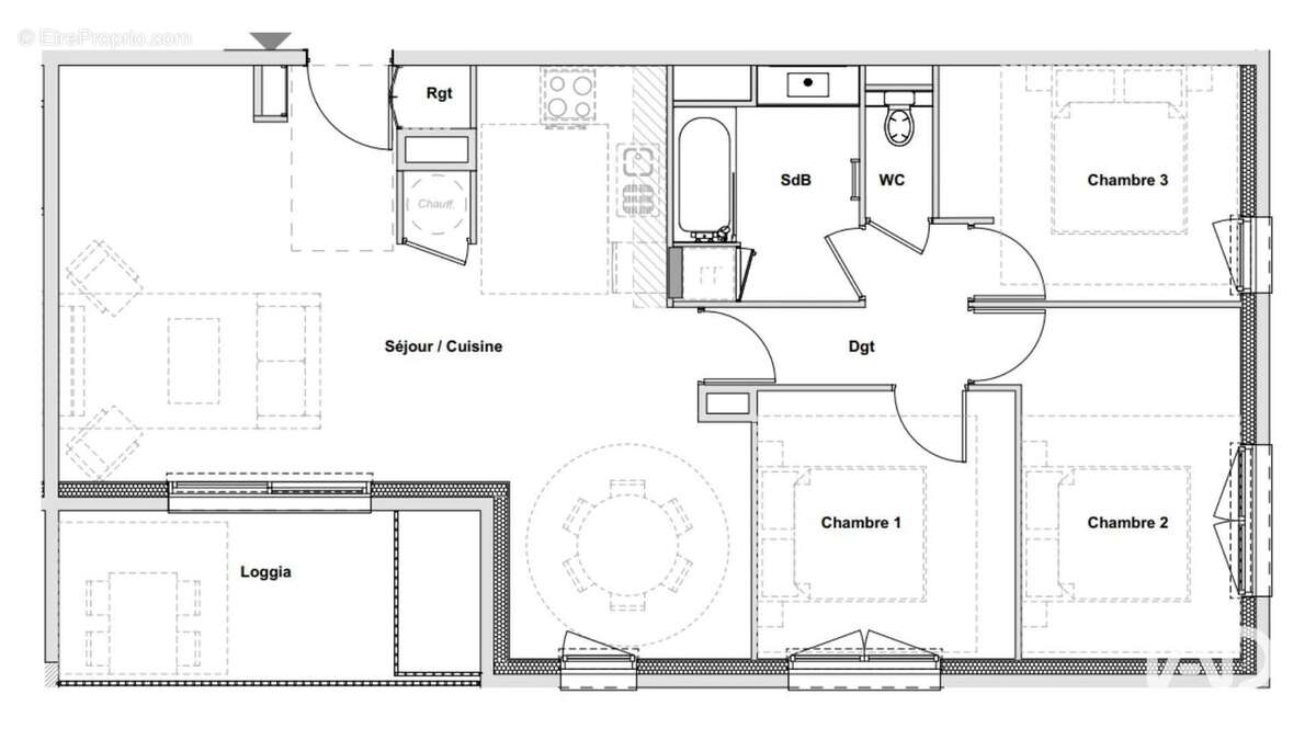
Appartement 83m² à riom

— Riom 63200 —
273 000 €
83 m²
4 pièces
balcon/terrasseascenseur

Nos partenaires locaux
Iad France - Sarah Rozière ([Coordonnées masquées]) vous propose : Appartement T4 avec balcon à Riom.

Située au cOEur de l'écoquartier de l'Ambène, dans un environnement moderne et verdoyant, la résidence contemporaine Les Rives de l'Ambène conjugue élégance architecturale et confort de vie. À proximité des commerces, des transports, des bassins de vie et des espaces naturels, cette adresse offre un cadre paisible et qualitatif à seulement quelques minutes du centre de Riom et de Clermont-Ferrand. Disponible 2027.

Un appartement raffiné :
Situé au 2 ème étage, cet appartement T4 de 83 m² environ habitables se prolonge par un balcon de 10 m² environ.

- Séjour / cuisine de 42 m² environ.
- Trois chambres confortables.
- Salle de bains moderne.

De belles prestations :
- Chauffage et production d'eau chaude via système collectif.
- Menuiseries extérieures avec double vitrage isolant, volets roulants électriques.
- Résidence sécurisée avec visiophone, contrôle d'accès Vigik et ascenseur.
- Locaux vélos sécurisés, espaces paysagers, sous-sols aménagés.

L'art de vivre aux Rives de l'Ambène :
- À deux pas des commerces et services du quartier.
- À proximité des axes majeurs vers Clermont-Ferrand.
- Environnement paisible, moderne et parfaitement desservi.
- Accès rapide aux zones d'activités, écoles et transports.

N'hésitez pas à me contacter pour plus d'informations ou pour un accompagnement sur mesure.

Honoraires d'agence à la charge du vendeur. Bien non soumis au DPE. Les informations sur les risques auxquels ce bien est exposé sont disponibles sur le site Géorisques : www.georisques.gouv.fr. La présente annonce immobilière a été rédigée sous la responsabilité éditoriale de Mlle Sarah Rozière EI (ID 83696), mandataire indépendant en immobilier (sans détention de fonds), agent commercial de la SAS I@D France immatriculé au RSAC de Clermont-Ferrand sous le numéro 978616993, titulaire de la carte de démarchage immobilier pour le compte de la société I@D France SAS.
Retrouvez tous nos biens sur notre site internet. www.iadfrance.fr.
Informations LOI ALUR :
Honoraires charge vendeur. (gedeon_6727_32176490)
Voir plus

Référence: 1889902-20
Honoraires à la charge du vendeur.

Prêt immobilier

Vous souhaitez connaître votre capacité d’emprunt et trouver le meilleur crédit immobilier ?
Réaliser une simulation gratuite

Photo 1 - Appartement à RIOM
Photo 1
Photo 2 - Appartement à RIOM
Photo 2
Photo 3 - Appartement à RIOM
Photo 3
Photo 4 - Appartement à RIOM
Photo 4
Photo 5 - Appartement à RIOM
Photo 5
Photo 6 - Appartement à RIOM
Photo 6
Photo 7 - Appartement à RIOM
Photo 7
Ce site est protégé par reCAPTCHA la Politique de confidentialité et les Conditions d’utilisation de Google s’appliquent.
Obtenir un prêt immobilier au meilleur taux ?

En poursuivant votre navigation sans modifier vos paramètres, vous acceptez l'utilisation de cookies susceptibles de réaliser des statistiques de visite. Cliquez ici pour plus d'informations