Proximite plages et commerces de la turballe

— La Turballe 44420 —
380 000 €
91 m² / 19 m²
4 pièces
parkingbalcon/terrassejardin

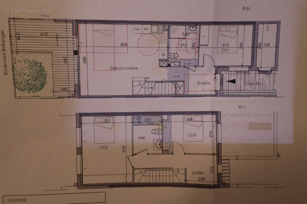
Maison neuve de 91.05 m² comprenant au RDC : une entrée avec placards, un séjour salon avec coin cuisine donnant sur terrasse bois avec jardinet, une chambre, une salle d'eau-WC. A l'Etage : un palier, deux chambres dont une de 16m2 , une salle de bains avec WC.
Deux places de parking, un cellier, complètent ce logement.
frais de notaire réduits
Les informations sur les risques auxquels ce bien est exposé sont disponibles sur le site Géorisques : www.georisques.gouv.fr
Voir plus

Référence: 121522

Prêt immobilier

Vous souhaitez connaître votre capacité d’emprunt et trouver le meilleur crédit immobilier ?
Réaliser une simulation gratuite

Maison à LA TURBALLE
Maison à LA TURBALLE
Maison à LA TURBALLE
Maison à LA TURBALLE
Ce site est protégé par reCAPTCHA la Politique de confidentialité et les Conditions d’utilisation de Google s’appliquent.
Obtenir un prêt immobilier au meilleur taux ?

En poursuivant votre navigation sans modifier vos paramètres, vous acceptez l'utilisation de cookies susceptibles de réaliser des statistiques de visite. Cliquez ici pour plus d'informations