Maison neuve 131 m2

— Quincieux 69650 —
549 000 €
131 m²
5 pièces
parking

Maison neuve RE2020 (Construction en cours) – 131 m² + Garage – Calme & vue champs – Quincieux

En fond d'une division parcellaire intimiste de trois maisons, cette maison neuve RE2020, en cours d'édification (livraison prévu juillet 2026), bénéficie d'un emplacement rare et privilégié : sans vis-à-vis, entièrement tournée vers les champs, dans un cadre champêtre calme et préservé.

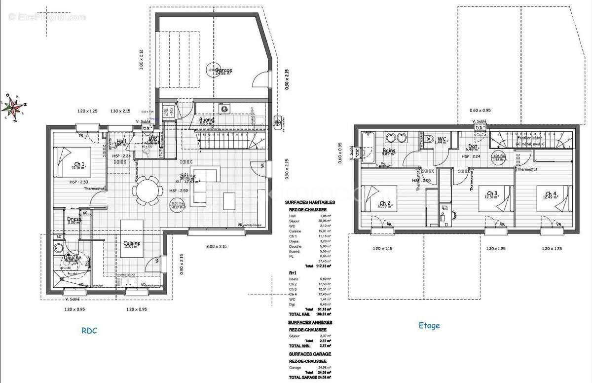
131 m² habitables + garage de 24 m² :

Au rez-de-chaussée : 1 grande pièce de vie lumineuse, 1 suite parentale avec salle d'eau et dressing, 1 buanderie, 1 WC

A l'étage : 3 chambres d'environ 12 m², 1 salle de bain, 1 WC

Confort & prestations :

Chauffage & Rafraichissement par pompe à chaleur gainable,
Ballon thermodynamique
Panneaux solaires 4 kW
Volets roulants électriques
Placards aménagés...

Extérieur : terrain clos et arboré d'environ 700 m², deux places de stationnement

Les plus : Frais de notaire réduits, garantie décennale et dommages ouvrage, construction neuve RE2020, emplacement préservé

A 800 m du centre de Quincieux (Commerces et services).

DPE non soumis pour ce bien - maison en cours de construction
(DPE sera établi à l'achèvement des travaux)

Cette annonce référence 311419 vous est présentée par votre agent commercial BSK Immobilier DIMITRI CORGER (EI) immatriculé au RSAC de OULLINS (69600) sous le numéro 93228234600018.

Prix du bien : 549 000,00 €
Les honoraires d'agence sont à la charge du vendeur.

Non soumis au DPE.

Les informations sur les risques auxquels ce bien est exposé sont disponibles sur le site Géorisques : www.georisques.gouv.fr
Voir plus

Référence: 311419
Honoraires à la charge du vendeur.

Prêt immobilier

Vous souhaitez connaître votre capacité d’emprunt et trouver le meilleur crédit immobilier ?
Réaliser une simulation gratuite

Maison à QUINCIEUX
Maison à QUINCIEUX
Maison à QUINCIEUX
Maison à QUINCIEUX
Maison à QUINCIEUX
Maison à QUINCIEUX
Maison à QUINCIEUX
Ce site est protégé par reCAPTCHA la Politique de confidentialité et les Conditions d’utilisation de Google s’appliquent.
Obtenir un prêt immobilier au meilleur taux ?

En poursuivant votre navigation sans modifier vos paramètres, vous acceptez l'utilisation de cookies susceptibles de réaliser des statistiques de visite. Cliquez ici pour plus d'informations