Bénéficiez des services de nos partenaires locaux soigneusement sélectionnés
pour vous accompagner dans votre parcours d'achat immobilier

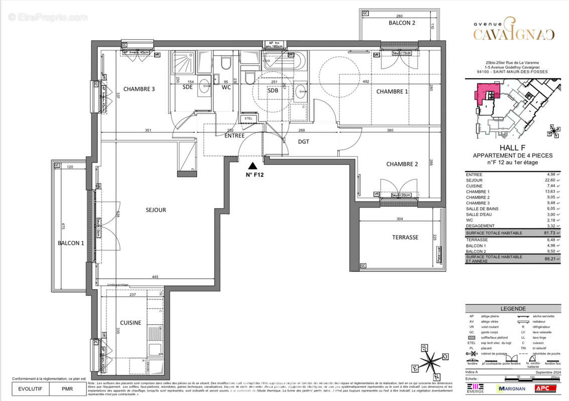
Appartement 83 m² à Saint-Maur-Des-Fosses

— Saint-Maur-Des-Fosses 94100 —
592 000 €
83 m²
4 pièces
parking

Nos partenaires locaux
Votre agence 123webimmo vous présente : Situé au 1er étage d'une résidence de standing, cet appartement 4 pièces de 83m² offre un cadre de vie confortable et fonctionnel, idéal pour une résidence principale, secondaire ou un investissement locatif.

Il comprend une entrée desservant un grand séjour et une cuisine ouverte sur un balcon, une salle de bain avec WC, 2 chambres dont une avec balcon et la seconde avec un accès à une agréable terrasse. Une suite parentale avec salle d'eau et un wc indépendant complète l'appartement.

L'appartement se trouve dans le quartier prisé du Parc à Saint-Maur-des-Fossés, à seulement quelques minutes à pied du RER A, de la future ligne 15 du Grand Paris Express, ainsi que de toutes les commodités (commerces, écoles, marchés, espaces verts?).

Un emplacement rare, mêlant praticité, dynamisme et qualité de vie.

Une place de parking en sous sol est comprise avec le bien.

Les informations sur les risques auxquels ce bien est exposé sont disponibles sur le site du gouvernement : https://www.georisques.gouv.fr
Voir plus

Référence: WI_c57310
Bien en copropriété. Nombre de lots : 24. Charges de copropriété : 1992 €.
Honoraires à la charge du vendeur.
Barème des honoraires
Appartement à SAINT-MAUR-DES-FOSSES
Appartement à SAINT-MAUR-DES-FOSSES
Appartement à SAINT-MAUR-DES-FOSSES
Appartement à SAINT-MAUR-DES-FOSSES
Appartement à SAINT-MAUR-DES-FOSSES
Appartement à SAINT-MAUR-DES-FOSSES
Appartement à SAINT-MAUR-DES-FOSSES
Appartement à SAINT-MAUR-DES-FOSSES
Appartement à SAINT-MAUR-DES-FOSSES
Appartement à SAINT-MAUR-DES-FOSSES
Appartement à SAINT-MAUR-DES-FOSSES
Appartement à SAINT-MAUR-DES-FOSSES
Appartement à SAINT-MAUR-DES-FOSSES
Appartement à SAINT-MAUR-DES-FOSSES
Appartement à SAINT-MAUR-DES-FOSSES
Appartement à SAINT-MAUR-DES-FOSSES
Appartement à SAINT-MAUR-DES-FOSSES
Appartement à SAINT-MAUR-DES-FOSSES
Géorisques

Les informations sur les risques auxquels ce bien est exposé sont disponibles sur le site Géorisques : www.georisques.gouv.fr

Ce site est protégé par hCaptcha Politique de confidentialité et Conditions d’utilisation s’appliquent.

En poursuivant votre navigation sans modifier vos paramètres, vous acceptez l'utilisation de cookies susceptibles de réaliser des statistiques de visite. Cliquez ici pour plus d'informations