Bénéficiez des services de nos partenaires locaux soigneusement sélectionnés
pour vous accompagner dans votre parcours d'achat immobilier

Beau 2 pièces à deux pas de la gare de bécon-les-bruyères

— Asnieres-Sur-Seine 92600 —
350 000 €
48 m²
2 pièces
ascenseur

Nos partenaires locaux
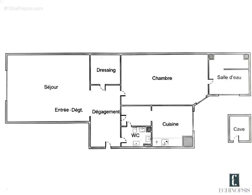
Au pied du square Gilbert‑Thomain, à deux pas de la gare de Bécon-les-Bruyères, vaste 2P traversant de 48,03 m2 Carrez dans un bel immeuble 1930.
Cet appartement en bon état bénéficie du charme de l'ancien avec parquet et moulures, de beaux volumes, nombreux rangements et fenêtres dans toutes les pièces. Il est composé d’une entrée, un séjour, une cuisine équipée, une grande chambre au calme sur cour, une salle de douche, un dressing aménagé et wc séparés.
Une cave complète le bien. A proximité de toutes les commodités commerces et transports : bus et train à 4 mn à pied de la gare de Bécon (ligne L : Paris Saint-Lazare, La Défense, Versailles).
A visiter sans tarder!
Voir plus

Référence: 86445379
Barème des honoraires
DPE
A
B
C
D
E
F
G
GES
A
B
C
D
E
F
G

Prêt immobilier

Vous souhaitez connaître votre capacité d’emprunt et trouver le meilleur crédit immobilier ?
Réaliser une simulation gratuite

Appartement à ASNIERES-SUR-SEINE
Appartement à ASNIERES-SUR-SEINE
Appartement à ASNIERES-SUR-SEINE
Appartement à ASNIERES-SUR-SEINE
Appartement à ASNIERES-SUR-SEINE
Appartement à ASNIERES-SUR-SEINE
Appartement à ASNIERES-SUR-SEINE
Appartement à ASNIERES-SUR-SEINE
Appartement à ASNIERES-SUR-SEINE
Ce site est protégé par reCAPTCHA la Politique de confidentialité et les Conditions d’utilisation de Google s’appliquent.
Obtenir un prêt immobilier au meilleur taux ?

En poursuivant votre navigation sans modifier vos paramètres, vous acceptez l'utilisation de cookies susceptibles de réaliser des statistiques de visite. Cliquez ici pour plus d'informations