Bénéficiez des services de nos partenaires locaux soigneusement sélectionnés
pour vous accompagner dans votre parcours d'achat immobilier

A vendre immeuble 10 pieces 513 m2

— Les Mureaux 78130 —
1 037 700 €
662 m² / 938 m²
10 pièces
parkingbalcon/terrassejardin

Nos partenaires locaux
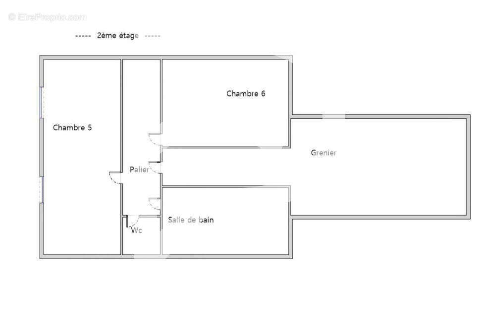
L'agence Stéphane Plaza Immobilier a le plaisir de vous présenter cet immeuble à usage commercial (298m2) et d'habitation (363m2). Il est localisé au coeur de la ville des Mureaux à seulement quelques minutes à pied de la gare. Érigé sur un terrain de 938m2, il se compose de deux étages, d'une grande cour où plusieurs véhicules peuvent aisément stationner en extérieur, un garage double d'environ 35m², ainsi qu'un jardin arboré. Le rez-de-chaussée est consacré à toutes activités commerciales (extractions d'air) avec son magasin de 63m² et sa vitrine donnant sur la rue, une réserve, une cuisine aménagée et équipée, un espace bureau, un vestiaire, une douche et une cave de 60m² environ. Le premier étage se compose d'une cuisine ouverte (aménagée et équipée) sur la salle à manger ainsi qu'un spacieux salon double exposition. Quatre chambres, trois salles d'eau, des WC indépendants et une buanderie complètent ce niveau. Le deuxième étage offre 3 chambres, une salle de bains, des WC indépendants ainsi que le grenier aménagé. Visite virtuelle disponible !
Voir plus

Référence: 205
Honoraires à la charge du vendeur.
Barème des honoraires
DPE
A
B
C
D
E
F
G
GES
A
B
C
D
E
F
G

Prêt immobilier

Vous souhaitez connaître votre capacité d’emprunt et trouver le meilleur crédit immobilier ?
Réaliser une simulation gratuite

Appartement à LES MUREAUX
Appartement à LES MUREAUX
Appartement à LES MUREAUX
Appartement à LES MUREAUX
Appartement à LES MUREAUX
Appartement à LES MUREAUX
Appartement à LES MUREAUX
Appartement à LES MUREAUX
Appartement à LES MUREAUX
Appartement à LES MUREAUX
Appartement à LES MUREAUX
Appartement à LES MUREAUX
Appartement à LES MUREAUX
Appartement à LES MUREAUX
Appartement à LES MUREAUX
Appartement à LES MUREAUX
Appartement à LES MUREAUX
Appartement à LES MUREAUX
Ce site est protégé par reCAPTCHA la Politique de confidentialité et les Conditions d’utilisation de Google s’appliquent.
Obtenir un prêt immobilier au meilleur taux ?

En poursuivant votre navigation sans modifier vos paramètres, vous acceptez l'utilisation de cookies susceptibles de réaliser des statistiques de visite. Cliquez ici pour plus d'informations