Bénéficiez des services de nos partenaires locaux soigneusement sélectionnés
pour vous accompagner dans votre parcours d'achat immobilier

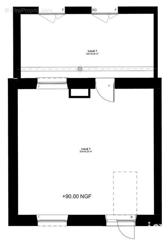
Commerce 66m² à brie-comte-robert

— Brie-Comte-Robert 77170 —
220 000 €
66 m²

Nos partenaires locaux
Iad France - Guillaume Combe ([Coordonnées masquées] ou [Coordonnées masquées]) vous propose : Local d'activité situé au rez-de-chaussée d'un très bel immeuble du centre-ville, d'une superficie de 66 m² environ, ce local est idéal pour des activités de bureaux (Notaire, Cabinet comptable, Agent d'assurance, services à la personne) ainsi que pour des activités médicales (Maison médical, cabinet dentaire, médecin, kinésithérapeute, paramédical. ). Les activités de restaurations alimentaire y sont en revanche proscrites.

> Programme neuf en VEFA, livraison 2ème trimestre 2026
> Frais de notaire réduits.
> Livré brut de béton. Aménagements intérieur à charge du preneur.
> TVA incluse de 20% déductible.

> 1 place de parking complète également ce lot.

Possibilité d'acquérir le local voisin du lot d'une superficie de 123 m² environ.

Pour de plus amples informations, n'hésitez pas à me contacter.

Information d'affichage énergétique sur le bien associé à cette annonce : DPE NS indice 0 et GES NS indice 0. La présente annonce immobilière a été rédigée sous la responsabilité éditoriale de M. Guillaume Combe (ID 12677), Agent Commercial mandataire en immobilier immatriculé au Registre Spécial des Agents Commerciaux (RSAC) du Tribunal de Commerce de Melun sous le numéro 804 776 920
Retrouvez tous nos biens sur notre site internet. www.iadfrance.fr.
Informations LOI ALUR :
Honoraires charge vendeur. (gedeon_6727_29761121)
Voir plus

Référence: 1595790
Honoraires à la charge du vendeur.

Prêt immobilier

Vous souhaitez connaître votre capacité d’emprunt et trouver le meilleur crédit immobilier ?
Réaliser une simulation gratuite

Photo 1 - Commerce à BRIE-COMTE-ROBERT
Photo 1
Photo 2 - Commerce à BRIE-COMTE-ROBERT
Photo 2
Photo 3 - Commerce à BRIE-COMTE-ROBERT
Photo 3
Ce site est protégé par reCAPTCHA la Politique de confidentialité et les Conditions d’utilisation de Google s’appliquent.
Obtenir un prêt immobilier au meilleur taux ?

En poursuivant votre navigation sans modifier vos paramètres, vous acceptez l'utilisation de cookies susceptibles de réaliser des statistiques de visite. Cliquez ici pour plus d'informations