Pas de parking à Cerisy-La-Foret pour le moment. Découvrez dès maintenant les parkings dans le département Manche.
Bénéficiez des services de nos partenaires locaux soigneusement sélectionnés
pour vous accompagner dans votre parcours d'achat immobilier

Vente local moderne mairie quai du vieux port 13002

— Marseille-2e 13002 —
215 000 €
55 m²
2 pièces

Nos partenaires locaux
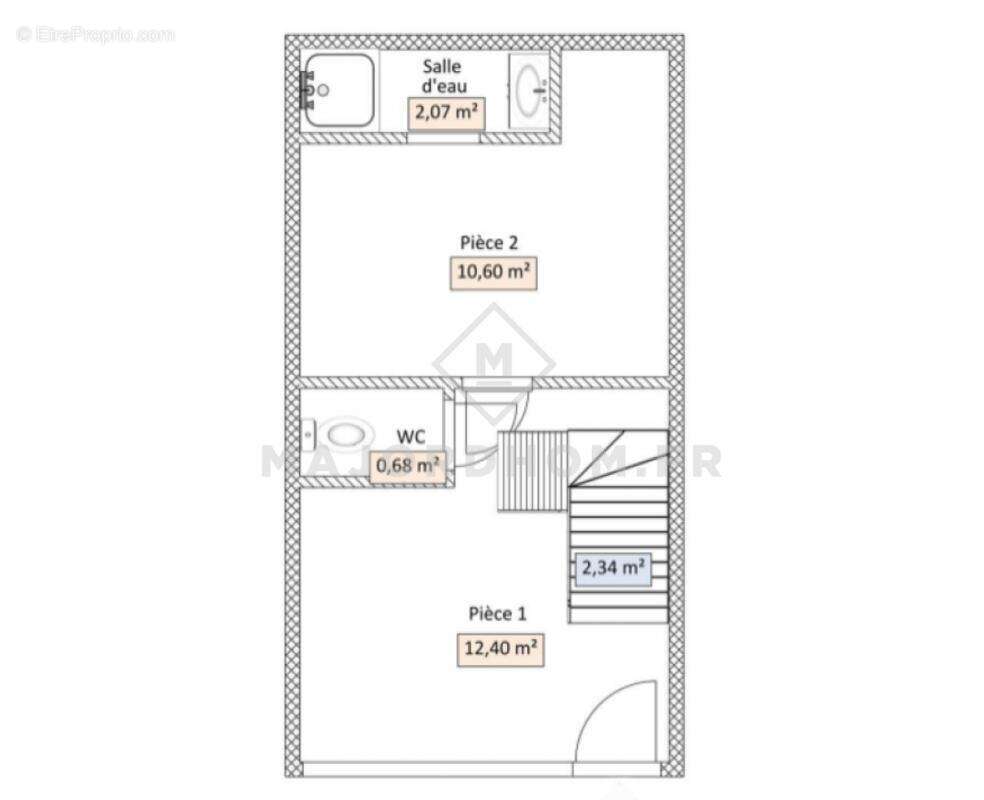
Dans le cœur animé du 2ème arrondissement de Marseille, une opportunité d'investissement locatif exceptionnelle se présente à vous. Ce local situé rue Henri Tasso est actuellement disponible à l'achat pour 215 000 €, offre bien plus qu'une simple adresse ; il incarne le potentiel d'un investissement judicieux dans l'un des quartiers les plus prisés de la ville.

Avec un agencement parfait et ses deux pièces à agencer selon vos besoins, cet espace est parfaitement adapté pour un investissement locatif polyvalent. Que vous envisagiez de le louer comme un espace commercial, un bureau professionnel ou autres, les possibilités sont aussi vastes que prometteuses.

Sa localisation privilégiée au cœur de Marseille, à proximité des transports en commun, des zones commerçantes et des sites touristiques, en fait un choix attrayant pour les locataires potentiels. Le dynamisme économique et culturel de ce quartier assure une demande locative constante, offrant ainsi un rendement solide sur votre investissement.

Ne manquez pas cette occasion de faire fructifier votre capital dans l'un des marchés immobiliers les plus dynamiques de la région. Contactez-nous dès aujourd'hui pour obtenir plus d'informations sur cette opportunité d'investissement locatif à Marseille. Avec ce bien, votre portefeuille immobilier est sur le point de s'épanouir dans une ville où les possibilités sont infinies.

Ce bien est géré par un agent commercial de MAJORDHOM, et les honoraires d'agence sont exclusivement à la charge du vendeur. Pour plus d'informations, plans, photos, visites virtuelles en haute définition, ainsi que l'ensemble de nos annonces, rendez-vous sur notre site web Majordhom fr. Téléchargez également notre application sur Google Play et l'Apple Store pour avoir toutes les informations à portée de main.

Ne ratez pas cette opportunité de résider dans un lieu d'exception à Marseille. Contactez-nous dès aujourd'hui pour organiser une visite !

Consommation énergie primaire: entre 71 et 110 kWh/m²/an
Montant estimé des dépenses annuelles d'énergie pour un usage standard: entre 742€ et 1150€

Informations sur les risques naturels et technologiques disponibles sur www.georisques.gouv.fr.
Voir plus

Référence: 6041K3

Prêt immobilier

Vous souhaitez connaître votre capacité d’emprunt et trouver le meilleur crédit immobilier ?
Réaliser une simulation gratuite

Commerce à MARSEILLE-2E
Commerce à MARSEILLE-2E
Commerce à MARSEILLE-2E
Commerce à MARSEILLE-2E
Commerce à MARSEILLE-2E
Commerce à MARSEILLE-2E
Commerce à MARSEILLE-2E
Commerce à MARSEILLE-2E
Commerce à MARSEILLE-2E
Commerce à MARSEILLE-2E
Commerce à MARSEILLE-2E
Commerce à MARSEILLE-2E
Commerce à MARSEILLE-2E
Ce site est protégé par reCAPTCHA la Politique de confidentialité et les Conditions d’utilisation de Google s’appliquent.
Obtenir un prêt immobilier au meilleur taux ?

En poursuivant votre navigation sans modifier vos paramètres, vous acceptez l'utilisation de cookies susceptibles de réaliser des statistiques de visite. Cliquez ici pour plus d'informations