Bénéficiez des services de nos partenaires locaux soigneusement sélectionnés
pour vous accompagner dans votre parcours d'achat immobilier

Vaux-le-penil appartement 3 piéces

— Vaux-Le-Penil 77000 —
269 000 €
76 m²
3 pièces
parkingbalcon/terrasseascenseur

Nos partenaires locaux
À découvrir : Appartement 3 pièces à Vaux-le-Pénil

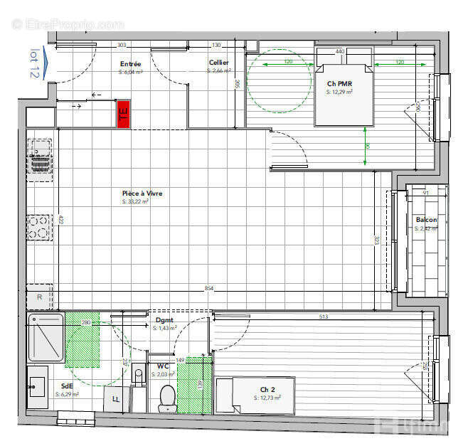
Situé au dernier étage de la résidence Gaïa, cet appartement offre un cadre de vie idéal. Il se compose d'une entrée avec placard, d'un séjour lumineux ouvrant sur un balcon, d'une cuisine aménagée et équipée, de deux chambres confortables, d'une salle d'eau moderne, d'un WC séparé et d'un cellier. Vous bénéficierez également de deux places de stationnement, parfaites pour votre quotidien.

Vaux-le-Pénil est une ville recherchée, appréciée pour son calme, ses commerces, ses écoles, ses accès routiers et sa proximité avec la gare de Melun, vous permettant de rejoindre Paris en seulement 25 minutes.

N'attendez plus pour découvrir ce bien rare ! **Contactez-moi** dès maintenant pour organiser une visite. Je suis également ouvert à l'intercabinet avec mes confrères afin d'offrir à nos clients le meilleur service possible.

Votre projet immobilier mérite le meilleur accompagnement !
Bien soumis au statut de la copropriété, 13 logements, procédure en cours : aucune, 32 lots, Charges budget prévisionnel annuel 0 €.

Annonce publiée par Christophe Dogliani (EI) votre agent commercial en immobilier LF immo à Melun, 77000 immatriculé au RSAC de MELUN sous le n°425 [Coordonnées masquées]6. Consultez nos tarifs sur le site LF immo.

Les informations sur les risques auxquels ce bien est exposé sont disponibles sur le site Géorisques : www.georisques.gouv.fr.
Voir plus

Référence: fr062967
Bien en copropriété. Nombre de lots : 32.
Honoraires à la charge du vendeur.

Prêt immobilier

Vous souhaitez connaître votre capacité d’emprunt et trouver le meilleur crédit immobilier ?
Réaliser une simulation gratuite

Appartement à VAUX-LE-PENIL
Appartement à VAUX-LE-PENIL
Appartement à VAUX-LE-PENIL
Appartement à VAUX-LE-PENIL
Ce site est protégé par reCAPTCHA la Politique de confidentialité et les Conditions d’utilisation de Google s’appliquent.
Obtenir un prêt immobilier au meilleur taux ?

En poursuivant votre navigation sans modifier vos paramètres, vous acceptez l'utilisation de cookies susceptibles de réaliser des statistiques de visite. Cliquez ici pour plus d'informations