Bénéficiez des services de nos partenaires locaux soigneusement sélectionnés
pour vous accompagner dans votre parcours d'achat immobilier

Maison 120m² à marseille-9e

— Marseille-9e 13009 —
995 000 €
120 m² / 471 m²
6 pièces
parkingbalcon/terrassejardin

Nos partenaires locaux
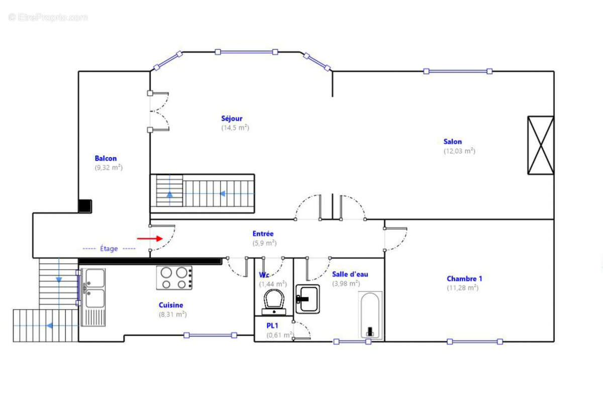
L'agence mavumer vous propose dans un secteur recherché, calme et sécurisé par portails motorisés avec acces par bd Michelet ou joseph Aiguier, cette maison individuelle de 120 m² habitables sur un terrain de 471 m² avec piscine. L'adresse est rare et la configuration du quartier, classé UP4, offre un cadre pavillonnaire préservé où les possibilités d'aménagement restent ouvertes.

La maison se développe sur deux niveaux et propose un séjour traversant avec cheminée, une cuisine séparée, trois chambres, un bureau, une salle d'eau et une salle de bains. Toutes les pièces profitent d'une belle luminosité, la climatisation et les fenetres en double vitrage. Le bâti est sain et solidement construit, permettant d'envisager des travaux sereinement. Une dépendance, ancien garage indépendant, peut facilement devenir un studio ou un espace d'accueil.

Le terrain accueille une piscine de 4,20 m par 8 m et un espace extérieur propice à la détente avec cuisine d'été, four à pizza et barbecue. Le potentiel est remarquable : rénovation complète, modernisation des volumes, possibilité de surélévation, agrandissement dans la limite des 40 % (188m²) d'emprise au sol. C'est l'occasion de créer une maison contemporaine dans un secteur où les opportunités sont extrêmement limitées.

À vingt minutes de Cassis, de Luminy et de ses facultés, proche des commerces, des écoles et des accès aux calanques, cette maison représente une base idéale pour un projet familial ambitieux ou une rénovation haut de gamme. Taxe foncière 2 613?. Charges de copropriété 185? /an (entretien portails).

 

Bien soumis aux règles de copropriété de 48 lots à usage d'habitation. Mandat 776


Pour tout renseignement ou pour visiter ce bien, merci de contacter Stéphane au [Coordonnées masquées] ou [Coordonnées masquées]. 


Les informations sur les risques auxquels ce bien est exposé sont disponibles sur le site Géorisques : www.georisques.gouv.fr
Voir plus

Référence: AG488-776
Bien en copropriété. Nombre de lots : 48. Charges de copropriété : 185 €.
Honoraires à la charge du vendeur.
DPE
A
B
C
D
E
F
G
GES
A
B
C
D
E
F
G

Prêt immobilier

Vous souhaitez connaître votre capacité d’emprunt et trouver le meilleur crédit immobilier ?
Réaliser une simulation gratuite

Maison à réinventer avec piscine et potentiel d?agrandissement Marseille 13009 ? Mazargues / Rolland Garros ? - Maison à MARSEILLE-9E
Maison à réinventer avec piscine et potentiel d?agrandissement Marseille 13009 ? Mazargues / Rolland Garros ?
Maison à réinventer avec piscine et potentiel d?agrandissement Marseille 13009 ? Mazargues / Rolland Garros ? - Maison à MARSEILLE-9E
Maison à réinventer avec piscine et potentiel d?agrandissement Marseille 13009 ? Mazargues / Rolland Garros ?
Maison à réinventer avec piscine et potentiel d?agrandissement Marseille 13009 ? Mazargues / Rolland Garros ? - Maison à MARSEILLE-9E
Maison à réinventer avec piscine et potentiel d?agrandissement Marseille 13009 ? Mazargues / Rolland Garros ?
Maison à réinventer avec piscine et potentiel d?agrandissement Marseille 13009 ? Mazargues / Rolland Garros ? - Maison à MARSEILLE-9E
Maison à réinventer avec piscine et potentiel d?agrandissement Marseille 13009 ? Mazargues / Rolland Garros ?
Maison à réinventer avec piscine et potentiel d?agrandissement Marseille 13009 ? Mazargues / Rolland Garros ? - Maison à MARSEILLE-9E
Maison à réinventer avec piscine et potentiel d?agrandissement Marseille 13009 ? Mazargues / Rolland Garros ?
Maison à réinventer avec piscine et potentiel d?agrandissement Marseille 13009 ? Mazargues / Rolland Garros ? n°2 - Maison à MARSEILLE-9E
Maison à réinventer avec piscine et potentiel d?agrandissement Marseille 13009 ? Mazargues / Rolland Garros ? n°2
Maison à réinventer avec piscine et potentiel d?agrandissement Marseille 13009 ? Mazargues / Rolland Garros ? n°1 - Maison à MARSEILLE-9E
Maison à réinventer avec piscine et potentiel d?agrandissement Marseille 13009 ? Mazargues / Rolland Garros ? n°1
Maison à réinventer avec piscine et potentiel d?agrandissement Marseille 13009 ? Mazargues / Rolland Garros ? - Maison à MARSEILLE-9E
Maison à réinventer avec piscine et potentiel d?agrandissement Marseille 13009 ? Mazargues / Rolland Garros ?
Maison à réinventer avec piscine et potentiel d?agrandissement Marseille 13009 ? Mazargues / Rolland Garros ? - Maison à MARSEILLE-9E
Maison à réinventer avec piscine et potentiel d?agrandissement Marseille 13009 ? Mazargues / Rolland Garros ?
Ce site est protégé par reCAPTCHA la Politique de confidentialité et les Conditions d’utilisation de Google s’appliquent.
Obtenir un prêt immobilier au meilleur taux ?

En poursuivant votre navigation sans modifier vos paramètres, vous acceptez l'utilisation de cookies susceptibles de réaliser des statistiques de visite. Cliquez ici pour plus d'informations