Bénéficiez des services de nos partenaires locaux soigneusement sélectionnés
pour vous accompagner dans votre parcours d'achat immobilier

Appartement 40m² à castellar

— Castellar 06500 —
289 000 €
40 m²
2 pièces
parkingbalcon/terrasseascenseur

Nos partenaires locaux
Iad France - Sarah Rozière ([Coordonnées masquées]) vous propose : Appartement T2 avec jardin à Menton.

Située route de Castellar, au cOEur d'un environnement résidentiel préservé et verdoyant, la résidence contemporaine Les Hauts Jardins conjugue élégance architecturale et confort de vie. Sur les hauteurs de Menton, à proximité des commerces, des transports et à quelques minutes des plages, cette adresse offre un cadre paisible et lumineux entre Italie et Monaco. Disponible 2026.

Un appartement raffiné :
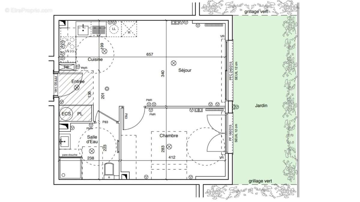
Situé en rez-de-chaussée, cet appartement T2 de 40 m² environ habitables se prolonge par un jardin privatif de 17 m² environ.

- Séjour / cuisine lumineux de 21 m² environ.
- Une chambre confortable.
- Salle d'eau moderne.
- Annexes incluses : un parking extérieur accessible PMR.

De belles prestations :
- Menuiseries PVC avec double vitrage isolant.
- Jardins privatifs équipés d'un point d'eau, terrasse en dalles sur plots.
- Chauffage par panneaux rayonnants électriques.
- Accès sécurisé par système Intratone, Vigik et visiophone.

L'art de vivre à Menton :
- À seulement 10 minutes du centre-ville et de la plage des Sablettes.
- À 15 minutes de l'Italie et 30 minutes de Monaco en voiture.
- Arrêt de bus ligne 6 au pied de la résidence.
- Commerces, écoles, jardin botanique, hôpital et équipements sportifs accessibles rapidement.
- Environnement calme, végétalisé et ensoleillé toute l'année

N'hésitez pas à me contacter pour plus d'informations ou pour un accompagnement sur mesure.

Honoraires d'agence à la charge du vendeur. Bien non soumis au DPE. Les informations sur les risques auxquels ce bien est exposé sont disponibles sur le site Géorisques : www.georisques.gouv.fr. La présente annonce immobilière a été rédigée sous la responsabilité éditoriale de Mlle Sarah Rozière EI (ID 83696), mandataire indépendant en immobilier (sans détention de fonds), agent commercial de la SAS I@D France immatriculé au RSAC de Clermont-Ferrand sous le numéro 978616993, titulaire de la carte de démarchage immobilier pour le compte de la société I@D France SAS.
Retrouvez tous nos biens sur notre site internet. www.iadfrance.fr.
Informations LOI ALUR :
Honoraires charge vendeur. (gedeon_6727_32187539)
Voir plus

Référence: 1841764-1
Honoraires à la charge du vendeur.

Prêt immobilier

Vous souhaitez connaître votre capacité d’emprunt et trouver le meilleur crédit immobilier ?
Réaliser une simulation gratuite

Photo 1 - Appartement à CASTELLAR
Photo 1
Photo 2 - Appartement à CASTELLAR
Photo 2
Photo 3 - Appartement à CASTELLAR
Photo 3
Photo 4 - Appartement à CASTELLAR
Photo 4
Photo 5 - Appartement à CASTELLAR
Photo 5
Photo 6 - Appartement à CASTELLAR
Photo 6
Photo 7 - Appartement à CASTELLAR
Photo 7
Photo 8 - Appartement à CASTELLAR
Photo 8
Photo 9 - Appartement à CASTELLAR
Photo 9
Ce site est protégé par reCAPTCHA la Politique de confidentialité et les Conditions d’utilisation de Google s’appliquent.
Obtenir un prêt immobilier au meilleur taux ?

En poursuivant votre navigation sans modifier vos paramètres, vous acceptez l'utilisation de cookies susceptibles de réaliser des statistiques de visite. Cliquez ici pour plus d'informations