Bénéficiez des services de nos partenaires locaux soigneusement sélectionnés
pour vous accompagner dans votre parcours d'achat immobilier

Voir tous les partenaires locaux

Appartement de 3 pièces rue st dominique paris 7

— Paris-7e 75007 —
1 395 000 €
78 m²
3 pièces
balcon/terrasse

Nos partenaires locaux
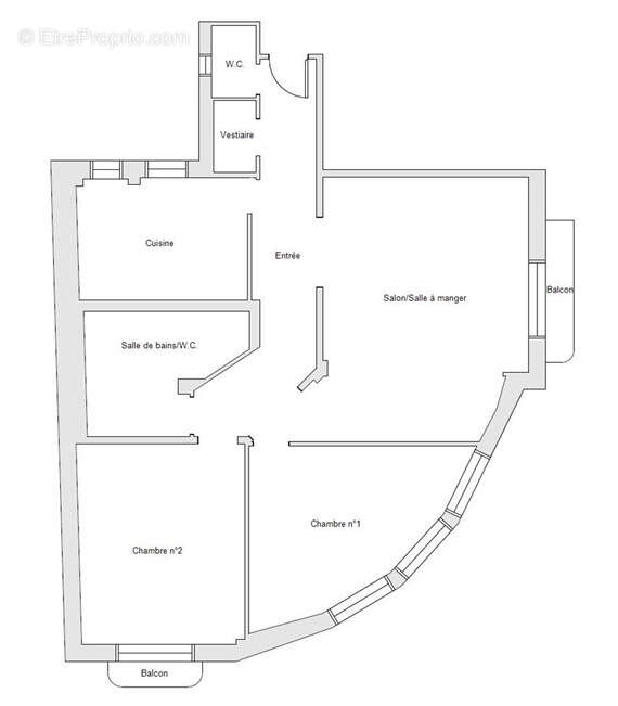
L'agence AXIHOME France vous propose : Idéalement placé à coté de l'Eglise St Pierre du Gros Cailloux et de la fameuse rue Cler, appartement de 79 m2 de 3 pièces agrémenté de 2 balconnets. Situé au 3ème étage d'un immeuble en bon état des années 40, l'appartement est orienté sud / ouest et ne nécessite pas de travaux. Pas de vis à vis direct. Vue sur la rue St dominique et l'église St Pierre. Le bien est vendu avec une cave. Une occupation par bail est effective jusqu'au 30 juin 2026. Taxe Foncière annuelle : 1 723 euros. Prix du bien : 1 395 000 € FAI (Frais d'agence inclus et à la charge du vendeur).
Voir plus

Référence: MT385
Bien en copropriété. Nombre de lots : 2.
Honoraires à la charge du vendeur.
Barème des honoraires
DPE
A
B
C
D
E
F
G
GES
A
B
C
D
E
F
G

Prêt immobilier

Vous souhaitez connaître votre capacité d’emprunt et trouver le meilleur crédit immobilier ?
Réaliser une simulation gratuite

Appartement à PARIS-7E
Appartement à PARIS-7E
Appartement à PARIS-7E
Appartement à PARIS-7E
Appartement à PARIS-7E
Appartement à PARIS-7E
Appartement à PARIS-7E
Ce site est protégé par reCAPTCHA la Politique de confidentialité et les Conditions d’utilisation de Google s’appliquent.
Obtenir un prêt immobilier au meilleur taux ?

En poursuivant votre navigation sans modifier vos paramètres, vous acceptez l'utilisation de cookies susceptibles de réaliser des statistiques de visite. Cliquez ici pour plus d'informations