Le blanc-mesnil t4 pièces de 89 m² avec 3 chambres, balcon filant, cave et parking sécurisé

— Le Blanc-Mesnil 93150 —
219 000 €
86 m²
4 pièces
parkingbalcon/terrasseascenseur

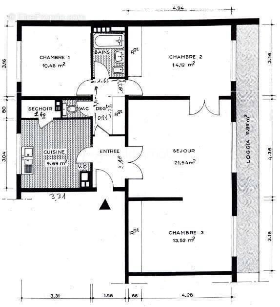
EN EXCLUSIVITÉ – Situé dans une ville en plein essor, au sein d'une résidence privée et bien entretenue, découvrez cet appartement 4 pièces d'environ 86m², au 1er étage avec ascenseur.
Possibilité d'aménager facilement en 3 pièces selon vos besoins.

L'appartement dispose d'un balcon filant, exposé sud-ouest, offrant une belle luminosité tout au long de la journée.

Equipé de double vitrage dans toutes les pièces, il se compose d'une entrée, d'un séjour spacieux de 21 m², d'une cuisine indépendante de 10 m² avec cellier attenant, d'une grande chambre de 15 m², d'une salle de bains et d'un WC indépendant.
Une cave ainsi qu'une place de parking extérieure complètent ce bien.

Atouts localisation :
À proximité de la future gare de la ligne 16 du Grand Paris Express, des bus reliant le RER B en 15 minutes, ainsi que des commerces, écoles et hypermarché.
Accès rapide aux axes N2, A3, A86 et A1.

Cette annonce référence 308758 vous est présentée par votre agent commercial BSK Immobilier ELODIE JAVALOYES (EIRL) immatriculé au RSAC de VERSAILLES (78000) sous le numéro 89175028300030.

Prix du bien : 219 000,00 €
Les honoraires d'agence sont à la charge du vendeur.

A propos de la copropriété :
Pas de procédure en cours.
Nombre de lots : 3
Charges prévisionnelles annuelles : 4 400,00 €

A propos des performances énergétiques :
Date de réalisation du diagnostic énergétique : 19/09/2022
Score DPE : 297 kWhEP/m²/an
Score GES : 64 kgepCO2/m²/an
Montant estimé des dépenses annuelles d'énergie pour un usage standard : entre 1340.00 € et 1850.00 € par an. Prix moyens des énergies indexés sur l'année 2021 (abonnements compris).

Les informations sur les risques auxquels ce bien est exposé sont disponibles sur le site Géorisques : www.georisques.gouv.fr
Voir plus

Référence: 308758
Bien en copropriété. Nombre de lots : 3. Charges de copropriété : 366 €.
Honoraires à la charge du vendeur.
DPE
A
B
C
D
E
F
G
GES
A
B
C
D
E
F
G

Prêt immobilier

Vous souhaitez connaître votre capacité d’emprunt et trouver le meilleur crédit immobilier ?
Réaliser une simulation gratuite

Appartement à LE BLANC-MESNIL
Appartement à LE BLANC-MESNIL
Appartement à LE BLANC-MESNIL
Appartement à LE BLANC-MESNIL
Appartement à LE BLANC-MESNIL
Appartement à LE BLANC-MESNIL
Appartement à LE BLANC-MESNIL
Appartement à LE BLANC-MESNIL
Appartement à LE BLANC-MESNIL
Appartement à LE BLANC-MESNIL
Appartement à LE BLANC-MESNIL
Appartement à LE BLANC-MESNIL
Appartement à LE BLANC-MESNIL
Appartement à LE BLANC-MESNIL
Appartement à LE BLANC-MESNIL
Appartement à LE BLANC-MESNIL
Appartement à LE BLANC-MESNIL
Appartement à LE BLANC-MESNIL
Appartement à LE BLANC-MESNIL
Appartement à LE BLANC-MESNIL
Appartement à LE BLANC-MESNIL
Appartement à LE BLANC-MESNIL
Appartement à LE BLANC-MESNIL
Appartement à LE BLANC-MESNIL
Appartement à LE BLANC-MESNIL
Appartement à LE BLANC-MESNIL
Appartement à LE BLANC-MESNIL
Appartement à LE BLANC-MESNIL
Ce site est protégé par reCAPTCHA la Politique de confidentialité et les Conditions d’utilisation de Google s’appliquent.
Obtenir un prêt immobilier au meilleur taux ?

En poursuivant votre navigation sans modifier vos paramètres, vous acceptez l'utilisation de cookies susceptibles de réaliser des statistiques de visite. Cliquez ici pour plus d'informations