Immeuble / maison a renover - possibilité de créer des appartements à louer!

— Le Grand-Luce 72150 —
99 000 €
188 m²
6 pièces

Je vous propose ce grand immeuble idéalement situé en plein cœur du Grand Lucé, à proximité immédiate des commerces et des écoles.
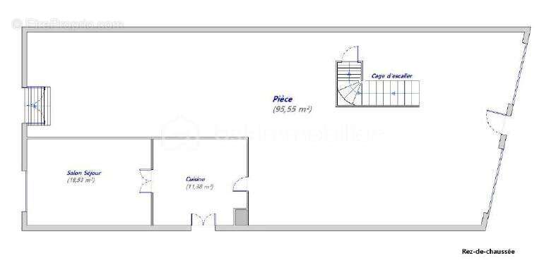
Au rez-de-chaussée, une pièce de 96 m², autrefois une boutique, vous offre un vaste espace pour aménager le salon de vos rêves ou l'emplacement pour un nouveau commerce.
Ce niveau comprend également une cuisine, une chambre de plain-pied avec vue sur une petite impasse (qui peut servir d'un bureau si nécessaire) ; un WC séparé se trouve entre deux étages. Vous trouverez également un accès direct à une grande dépendance de 70 m², avec deux portes de garage.
À l'étage, un palier dessert trois chambres de 9 m², 16 m² et 23 m², ainsi qu'une salle d'eau de 8 m². La plus grande des chambres dispose d'un accès à un petit grenier, qui pourrait être transformé en un bureau ou une suite parentale.
Parmi les atouts supplémentaires, cet immeuble offre un grenier aménageable d'environ 67 m² au sol, une cave, et un grand jardin au calme à l'arrière de la maison.
Cet immeuble nécessitant de gros travaux de rénovation (menuiseries, électricité, chauffage, décoration...), offre un beau potentiel pour être aménagée selon vos envies.
UNE BELLE OPPORTUNITE POUR LES INVESTISSEURS - IL EST POSSIBLE DE CREER 4-5 APPARTEMENTS A LOUER DANS CET IMMEUBLE!
Pour plus de renseignements, n'hésitez pas à me contacter.

Cette annonce référence 298404 vous est présentée par votre agent commercial BSK Immobilier TATIANA BARATTE (EI) immatriculé au RSAC de LE MANS (72000) sous le numéro 9[Coordonnées masquées]019.

Prix du bien : 99 000,00 €
Les honoraires d'agence sont à la charge du vendeur.

A propos des performances énergétiques :
Date de réalisation du diagnostic énergétique : 02/02/2024
Score DPE : 334 kWhEP/m²/an
Score GES : 97 kgepCO2/m²/an
Montant estimé des dépenses annuelles d'énergie pour un usage standard : entre 4840.00 € et 6580.00 € par an. Prix moyens des énergies indexés sur l'année 2021 (abonnements compris).

Les informations sur les risques auxquels ce bien est exposé sont disponibles sur le site Géorisques : www.georisques.gouv.fr
Voir plus

Référence: 298404_1
Honoraires à la charge du vendeur.
DPE
A
B
C
D
E
F
G
GES
A
B
C
D
E
F
G

Prêt immobilier

Vous souhaitez connaître votre capacité d’emprunt et trouver le meilleur crédit immobilier ?
Réaliser une simulation gratuite

Appartement à LE GRAND-LUCE
Appartement à LE GRAND-LUCE
Appartement à LE GRAND-LUCE
Appartement à LE GRAND-LUCE
Appartement à LE GRAND-LUCE
Appartement à LE GRAND-LUCE
Appartement à LE GRAND-LUCE
Appartement à LE GRAND-LUCE
Appartement à LE GRAND-LUCE
Appartement à LE GRAND-LUCE
Appartement à LE GRAND-LUCE
Appartement à LE GRAND-LUCE
Appartement à LE GRAND-LUCE
Appartement à LE GRAND-LUCE
Appartement à LE GRAND-LUCE
Appartement à LE GRAND-LUCE
Appartement à LE GRAND-LUCE
Appartement à LE GRAND-LUCE
Appartement à LE GRAND-LUCE
Appartement à LE GRAND-LUCE
Ce site est protégé par reCAPTCHA la Politique de confidentialité et les Conditions d’utilisation de Google s’appliquent.
Obtenir un prêt immobilier au meilleur taux ?

En poursuivant votre navigation sans modifier vos paramètres, vous acceptez l'utilisation de cookies susceptibles de réaliser des statistiques de visite. Cliquez ici pour plus d'informations