Appartement

— Villemomble 93250 —
234 500 €
56 m²
2 pièces
parkingbalcon/terrasse

93250 - VILLEMOMBLE - APPARTEMENT - T2 ou T3 - 56 m² - BALCON LARGE - QUARTIER NORD EST - BOX FERMÉ - GARE 600 MÈTRES - CALME -

Les + : TERRASSE avec VUE DEGAGEE - LUMINEUX - Parquet baguette - BOX - SUD OUEST

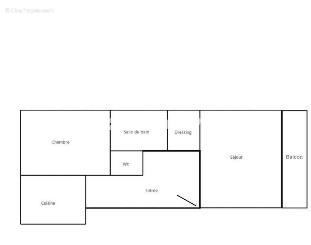
Cet appartement de 56 m² CARREZ comporte 2 PIÈCES ORIENTÉES SUD OUEST situé AVENUE MARIE + un BALCON SPACIEUX avec cave et BOX fermé.
Au coeur d'un immeuble de taille familiale de 2 étages, ce T2 dispose d'une entrée avec un séjour de 20 M2 , d'un balcon filant du séjour, une cuisine indépendante (ou petite chambre bureau), un dressing ou une cuisine ouverte, SDB et WC séparés.Prévoir Travaux de peinture et créez votre cuisine, votre agencement des espaces si vous voulez les modifier.
Ce bien comprend un BOX fermé - Cave - Escalier - Local vélo .

Chaudière gaz individuelle - Taxe Foncière : 1.112 € - Charges trimestrielles : 201 €
A visiter ABSOLUMENT
Les informations sur les risques auxquels ce bien est exposé sont disponibles sur le site Georisque : georisques. gouv. fr
Gael Brossaud représentant de la EURL Gaël BROSSAUD Immobilier dont le siège social se situe 16 Rue Vandrezanne 75013 Paris - titulaire de la carte professionnelle CPI CPI75[Coordonnées masquées]00235 - CCI de Paris le 24/05/2024 - immatriculée au RCS de Paris sous le n°927 901 132 - immatriculée au Registre Spécial des Agents Commerciaux du Tribunal de Commerce de Paris sous le n°813142676.
Siège social du mandant : effiCity, 48 avenue de Villiers - 75017 PARIS - Société par Actions Simplifiée, société au capital de 132 373,05 euros, immatriculée au RCS Paris 497 617 746 et titulaire de la Carte professionnelle CPI 75[Coordonnées masquées]02 025 - CCI Paris IDF - Caisse de Garantie : GALIAN Assurances 89 rue de la Boétie 75008 Paris
Voir plus

Référence: 199304
Bien en copropriété. Nombre de lots : 6. Charges de copropriété : 200 €.
Honoraires d'agence de 6.6% à la charge de l'acquéreur
Barème des honoraires
DPE
A
B
C
D
E
F
G
GES
A
B
C
D
E
F
G

Prêt immobilier

Vous souhaitez connaître votre capacité d’emprunt et trouver le meilleur crédit immobilier ?
Réaliser une simulation gratuite

Appartement à VILLEMOMBLE
Appartement à VILLEMOMBLE
Appartement à VILLEMOMBLE
Appartement à VILLEMOMBLE
Appartement à VILLEMOMBLE
Appartement à VILLEMOMBLE
Appartement à VILLEMOMBLE
Appartement à VILLEMOMBLE
Appartement à VILLEMOMBLE
Ce site est protégé par reCAPTCHA la Politique de confidentialité et les Conditions d’utilisation de Google s’appliquent.
Obtenir un prêt immobilier au meilleur taux ?

En poursuivant votre navigation sans modifier vos paramètres, vous acceptez l'utilisation de cookies susceptibles de réaliser des statistiques de visite. Cliquez ici pour plus d'informations