Bénéficiez des services de nos partenaires locaux soigneusement sélectionnés
pour vous accompagner dans votre parcours d'achat immobilier

Antigone - spacieux t4 avec grande terrasse au cœur d'antigone

— Montpellier 34000 —
495 000 €
120 m²
4 pièces
parkingbalcon/terrasseascenseur

Nos partenaires locaux
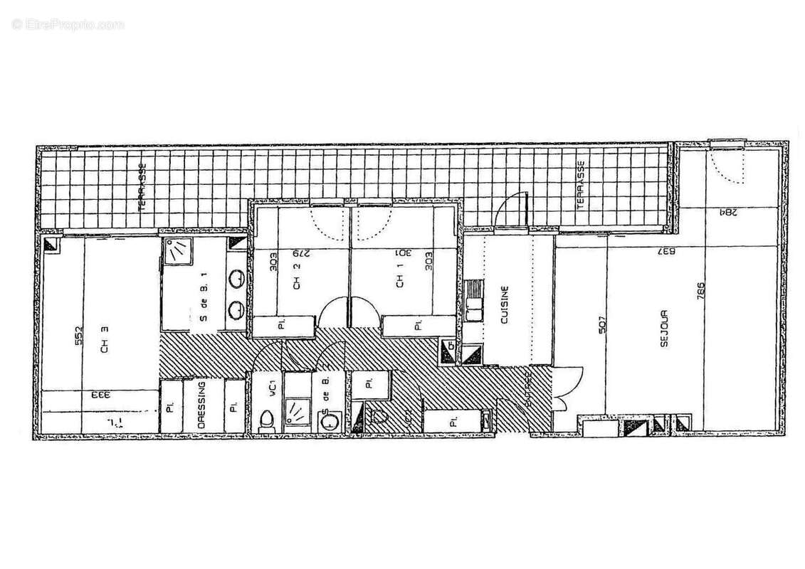
EXCLUSIVITÉ - ANTIGONE – À proximité immédiate du centre-ville, des lignes de tramway et de toutes les commodités, cet appartement T4 de 120 m² situé au 3éme étage d'une résidence de standing offre un cadre de vie particulièrement confortable. L'entrée mène à un vaste séjour baigné de lumière grâce à de larges ouvertures donnant sur une grande terrasse de plus de 30 m². Cet espace extérieur généreux permet d'aménager aisément différents coins de détente et de profiter pleinement des beaux jours. La cuisine équipée bénéficie elle aussi d'un accès direct à la terrasse, ce qui rend l'ensemble très agréable au quotidien. L'agencement intérieur est particulièrement harmonieux : la partie nuit, bien séparée des espaces de vie, se compose de trois chambres dotées de rangements intégrés. La grande chambre principale dispose de sa propre salle d'eau attenante ainsi que d'un dressing, offrant un véritable espace parental. Les deux autres chambres sont situées à proximité d'une salle de bains et de toilettes indépendantes, ce qui rend la distribution aussi pratique que confortable. De nombreux rangements complètent l'appartement, renforçant son côté fonctionnel. Un garage fermé situé au sous-sol (R-1) vient parfaire les prestations de ce bien. CONTACT : Yann MATHIEU - [Coordonnées masquées] - [Coordonnées masquées] Bien soumis au statut juridique de la Copropriété. Pas de procédure en cours. Surface CARREZ : 119.98 m² Prix TTC et Honoraires à charge vendeur TTC Agent commercial RSAC N° 538 594 409 Montant estimé des dépenses annuelles d'énergie pour un usage standard : entre 813 € et 1 099 € par an.
Voir plus

Référence: 10875
Bien en copropriété.
Honoraires à la charge du vendeur.
Barème des honoraires
DPE
A
B
C
D
E
F
G
GES
A
B
C
D
E
F
G

Prêt immobilier

Vous souhaitez connaître votre capacité d’emprunt et trouver le meilleur crédit immobilier ?
Réaliser une simulation gratuite

Appartement à MONTPELLIER
Appartement à MONTPELLIER
Appartement à MONTPELLIER
Appartement à MONTPELLIER
Appartement à MONTPELLIER
Appartement à MONTPELLIER
Appartement à MONTPELLIER
Appartement à MONTPELLIER
Appartement à MONTPELLIER
Appartement à MONTPELLIER
Ce site est protégé par reCAPTCHA la Politique de confidentialité et les Conditions d’utilisation de Google s’appliquent.
Obtenir un prêt immobilier au meilleur taux ?

En poursuivant votre navigation sans modifier vos paramètres, vous acceptez l'utilisation de cookies susceptibles de réaliser des statistiques de visite. Cliquez ici pour plus d'informations