Bénéficiez des services de nos partenaires locaux soigneusement sélectionnés
pour vous accompagner dans votre parcours d'achat immobilier

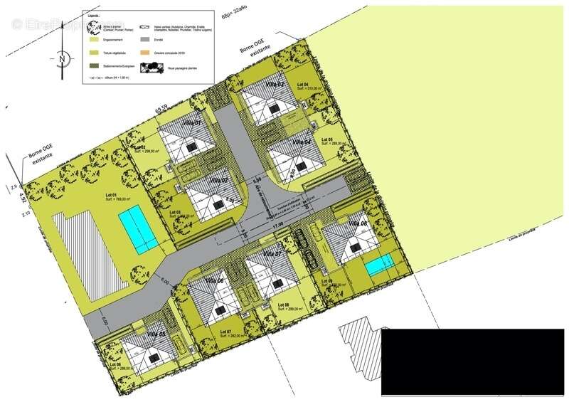
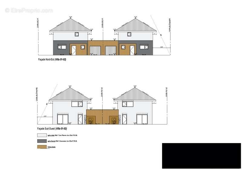
Maison à vendre 5 pièces la ravoire (73) - maison mitoyenne - neuve - n°7

— La Ravoire 73490 —
408 000 €
107 m² / 299 m²
5 pièces

Nos partenaires locaux
Découvrez en avant première cette maison mitoyenne par le garage neuve et actuellement en construction.
Frais de notaire offert pour le lancement.

Pensée pour offrir un confort moderne et une qualité de vie optimale, la maison de 107 M2 propose :
- une grande pièce de vie lumineuse
- une cuisine ouverte sur le séjour
- 3 chambres
- Normes RE 2020
- Jardin privatif et espace extérieur de 299 M2
- Garage

Situé dans un cadre résidentiel recherché, c'est une belle opportunité pour acquérir un bien neuf. Les honoraires sont à la charge du vendeur.
Les informations sur les risques auxquels ce bien est exposé sont disponibles sur le site Géorisques : www. georisques. gouv. fr.

Réseau Immobilier CAPIFRANCE - Votre agent commercial (RSAC N°522 248 087 - Greffe de CHAMBERY) Nelly MASSAT Entrepreneur Individuel [Coordonnées masquées] - Réf.930482
Voir plus

Référence: 340934868519
Honoraires à la charge du vendeur.

Prêt immobilier

Vous souhaitez connaître votre capacité d’emprunt et trouver le meilleur crédit immobilier ?
Réaliser une simulation gratuite

Maison à LA RAVOIRE
Maison à LA RAVOIRE
Maison à LA RAVOIRE
Ce site est protégé par reCAPTCHA la Politique de confidentialité et les Conditions d’utilisation de Google s’appliquent.
Obtenir un prêt immobilier au meilleur taux ?

En poursuivant votre navigation sans modifier vos paramètres, vous acceptez l'utilisation de cookies susceptibles de réaliser des statistiques de visite. Cliquez ici pour plus d'informations