Bénéficiez des services de nos partenaires locaux soigneusement sélectionnés
pour vous accompagner dans votre parcours d'achat immobilier

2851m² à mormant

— Mormant 77720 —
2 860 000 €
2 851 m²

Nos partenaires locaux
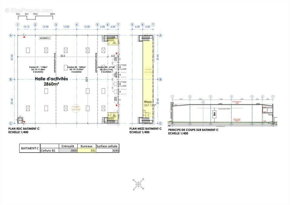
SISTOM vous propose à la vente un bâtiment indépendant de 2860 m2 divisible à partir de 1430 m2. Situé en Brie Nangissienne, ces locaux divisibles pourront recevoir tout type d'activités.Le bâtiment dispose de quais de déchargement, de porte de plain pieds et de places de parkings privatives pour les Poids-Lourd.Surfaces : de 1430 à 2860 m2

Accès routiers :
Nationale 4
Autoroute A5

Référence: 77_1715
Honoraires à la charge de l'acquéreur.

Prêt immobilier

Vous souhaitez connaître votre capacité d’emprunt et trouver le meilleur crédit immobilier ?
Réaliser une simulation gratuite

Autre à MORMANT
Autre à MORMANT
Autre à MORMANT
Autre à MORMANT
Autre à MORMANT
Autre à MORMANT
Ce site est protégé par reCAPTCHA la Politique de confidentialité et les Conditions d’utilisation de Google s’appliquent.
Obtenir un prêt immobilier au meilleur taux ?

En poursuivant votre navigation sans modifier vos paramètres, vous acceptez l'utilisation de cookies susceptibles de réaliser des statistiques de visite. Cliquez ici pour plus d'informations