Bénéficiez des services de nos partenaires locaux soigneusement sélectionnés
pour vous accompagner dans votre parcours d'achat immobilier

Villa 4 pièces 89m2 lisle sur tarn

— Lisle-Sur-Tarn 81310 —
230 000 €
90 m²
4 pièces
parking

Nos partenaires locaux
À Vendre : Maison Neuve RE2020 - 4 Pièces à Lisle-sur-Tarn
Villa 3

Prix : 230 000 €

Située à Lisle-sur-Tarn, à proximité du collège et des commerces, cette maison est idéale pour une famille en quête de praticité et de qualité de vie. Tout est pensé pour votre bien-être !

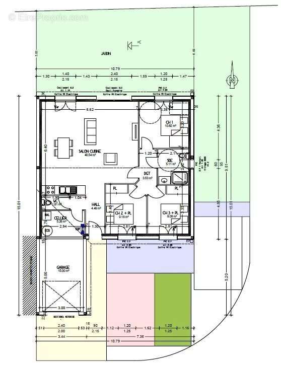
Maison conforme aux normes RE2020, garantissant une performance énergétique élevée, d'une surface habitable de 89m² :
un séjour avec cuisine ouverte de 40m², wc indépendant, cellier. Le coin nuit compte 3 chambres dont 2 avec placard et une salle d'eau avec douche et wc. Ainsi qu'un garage de 15m².

Équipements et prestations :
Chauffage par pompe à chaleur gainable, pour une gestion optimale de la température, complété par un chauffe-eau thermodynamique, pour un meilleur rendement énergétique.
Cuisine : un budget est alloué pour son aménagement, vous permettant de la personnaliser à votre goût

Côté extérieur :
Terrasse de 9m² carrelée
Jardin : 112 m², entièrement clôturé, idéal pour vos moments de détente en extérieur
Place de parking privatif

Livraison prévue : Septembre 2026
Voir plus

Référence: 86120516
Barème des honoraires

Prêt immobilier

Vous souhaitez connaître votre capacité d’emprunt et trouver le meilleur crédit immobilier ?
Réaliser une simulation gratuite

Maison à LISLE-SUR-TARN
Maison à LISLE-SUR-TARN
Ce site est protégé par reCAPTCHA la Politique de confidentialité et les Conditions d’utilisation de Google s’appliquent.
Obtenir un prêt immobilier au meilleur taux ?

En poursuivant votre navigation sans modifier vos paramètres, vous acceptez l'utilisation de cookies susceptibles de réaliser des statistiques de visite. Cliquez ici pour plus d'informations