Bénéficiez des services de nos partenaires locaux soigneusement sélectionnés
pour vous accompagner dans votre parcours d'achat immobilier

Immeuble 4 pieces 96 m² roanne

— Roanne 42300 —
96 000 €
96 m² / 12 m²
4 pièces
jardin

Nos partenaires locaux
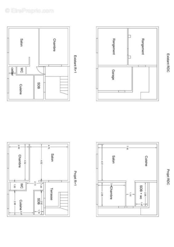
Région Auvergne Rhône-Alpes - Département Loire (42) - Votre agence immobilière IMMO FACTORY à Roanne vous propose à la vente, secteur Mulsant, Cet immeuble d'une superficie potentielle de 96 m² habitables avec cour intérieure actuellement composé comme suit : - Au rez-de-chaussée : deux pièces à rénover de 33 m² et un garage aménageable de 12 m², soit un total de 45 m² pour un futur appartement (exemple plan ci-joint). - A l'étage : un appartement de type 2 à rafraîchir d'environ 51 m² habitables comprenant : palier, cuisine, cellier, salon, W.C., une chambre et une salle de bains. JOLI POTENTIEL D'INVESTISSEMENT LOCATIF !
Voir plus

Référence: 182
Honoraires à la charge du vendeur.
Barème des honoraires
DPE
A
B
C
D
E
F
G
GES
A
B
C
D
E
F
G

Prêt immobilier

Vous souhaitez connaître votre capacité d’emprunt et trouver le meilleur crédit immobilier ?
Réaliser une simulation gratuite

Appartement à ROANNE
Appartement à ROANNE
Appartement à ROANNE
Appartement à ROANNE
Appartement à ROANNE
Appartement à ROANNE
Appartement à ROANNE
Appartement à ROANNE
Appartement à ROANNE
Appartement à ROANNE
Appartement à ROANNE
Appartement à ROANNE
Appartement à ROANNE
Appartement à ROANNE
Appartement à ROANNE
Appartement à ROANNE
Ce site est protégé par reCAPTCHA la Politique de confidentialité et les Conditions d’utilisation de Google s’appliquent.
Obtenir un prêt immobilier au meilleur taux ?

En poursuivant votre navigation sans modifier vos paramètres, vous acceptez l'utilisation de cookies susceptibles de réaliser des statistiques de visite. Cliquez ici pour plus d'informations