Bénéficiez des services de nos partenaires locaux soigneusement sélectionnés
pour vous accompagner dans votre parcours d'achat immobilier

Voir tous les partenaires locaux

Programme neuf strasbourg

— Strasbourg 67000 —
142 800 €
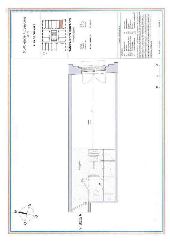
20 m²
1 pièce
ascenseur

Nos partenaires locaux
Mandaté par un promoteur reconnu et sérieux, TCM DEVELOPPEMENT vous propose ce studio meublé dans une nouvelle résidence étudiante au coeur de Strasbourg. Bénéficiant d'un emplacement exceptionnel à proximité du pôle universitaire dynamique très prisé de la ville et de l'école hôtelière Vatel, la résidence se situe au pied des commerces, du tram et de la promenade le long des quais. Les étudiants apprécieront les espaces communs connectés dédiés au travail, favorisant la concentration et la productivité, la cafétéria conviviale, la salle de fitness, la laverie et les autres services. Livraison prévue pour le 3ème trimestre 2027 ! Avec le statut LMNP, vous bénéficierez d'une fiscalité avantageuse : percevoir un loyer peu ou pas fiscalisé, récupérer la TVA sur votre acquisition et déduire les charges d'exploitation de vos recettes locatives. Vous êtes intéressés ? Nous sommes votre interlocuteur privilégié local. N'hésitez pas à nous contacter pour plus de renseignements !
Voir plus

Référence: 547
Honoraires à la charge du vendeur.
Barème des honoraires

Prêt immobilier

Vous souhaitez connaître votre capacité d’emprunt et trouver le meilleur crédit immobilier ?
Réaliser une simulation gratuite

Appartement à STRASBOURG
Appartement à STRASBOURG
Appartement à STRASBOURG
Appartement à STRASBOURG
Appartement à STRASBOURG
Ce site est protégé par reCAPTCHA la Politique de confidentialité et les Conditions d’utilisation de Google s’appliquent.
Obtenir un prêt immobilier au meilleur taux ?

En poursuivant votre navigation sans modifier vos paramètres, vous acceptez l'utilisation de cookies susceptibles de réaliser des statistiques de visite. Cliquez ici pour plus d'informations