Appartement 120m² à beausoleil

— Beausoleil 06240 —
1 401 000 €
120 m²
4 pièces
balcon/terrasseascenseur

Iad France - Pierre Magerand ([Coordonnées masquées]) vous propose : Appartement T4 avec jardin à Beausoleil - Résidence de prestige.

Située avenue du Prince Rainier III, dans un environnement arboré et privilégié à deux pas de Monaco, la résidence de standing conçue par Emerige conjugue élégance contemporaine, prestations haut de gamme et douceur de vivre méditerranéenne. À proximité immédiate des commerces, des écoles, des transports et du parc Grima, cette adresse domine la baie de Monaco tout en offrant un cadre calme et protégé. Disponible 2028.

Un appartement raffiné :
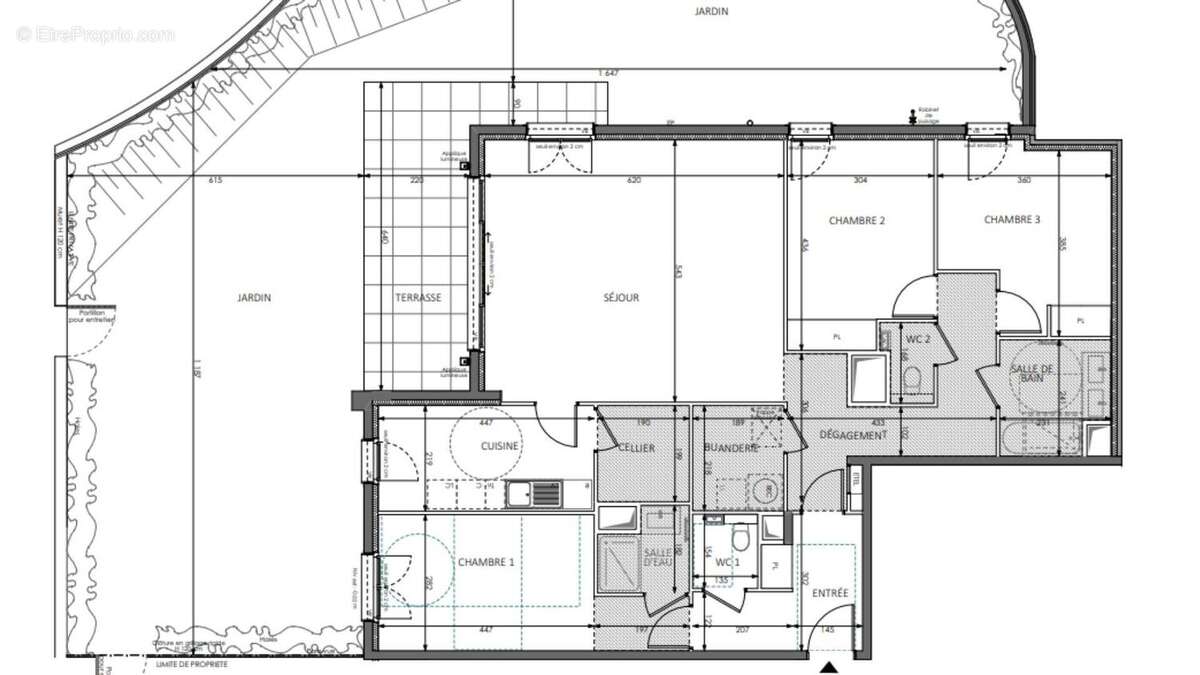
Situé en rez-de-chaussée, cet appartement T4 de 120 m² environ habitables bénéficie d'un superbe jardin privatif de 147 m² environ prolongé par une terrasse de 17 m² environ.

- Séjour / cuisine lumineux de 34 m² environ.
- Trois chambres confortables.
- Salle d'eau et salle de bains modernes.
- Rangements intégrés.

De belles prestations :
La résidence et le logement offrent des matériaux nobles et des équipements premium.

- Parquet contrecollé dans le séjour et la chambre.
- Climatisation réversible gainable (chauffage & rafraîchissement).
- Espace bien-être avec spa, sauna, hammam et salle de fitness.
- Hall d'entrée décoré par un architecte d'intérieur.
- Ascenseur, local vélos, accès sécurisé par vidéophone et Vigik®.

L'art de vivre à Beausoleil :
- À 500 m du border Monaco, proche de la place du Casino.
- À 100 m de l'arrêt Grima (bus vers Monaco).
- À moins de 10 minutes de l'autoroute A8.
- Environnement verdoyant avec accès direct au Parc Grima.
- Vue dominante sur la Méditerranée et le Rocher.

N'hésitez pas à me contacter pour plus d'informations ou pour un accompagnement sur mesure.

Honoraires d'agence à la charge du vendeur. Bien non soumis au DPE. Les informations sur les risques auxquels ce bien est exposé sont disponibles sur le site Géorisques : www.georisques.gouv.fr. La présente annonce immobilière a été rédigée sous la responsabilité éditoriale de M. Pierre Magerand EI (ID 86098), mandataire indépendant en immobilier (sans détention de fonds), agent commercial de la SAS I@D France immatriculé au RSAC de Cusset sous le numéro 938729175, titulaire de la carte de démarchage immobilier pour le compte de la société I@D France SAS.
Retrouvez tous nos biens sur notre site internet. www.iadfrance.fr.
Informations LOI ALUR :
Honoraires charge vendeur. (gedeon_6727_32190622)
Voir plus

Référence: 1868162-5
Honoraires à la charge du vendeur.

Prêt immobilier

Vous souhaitez connaître votre capacité d’emprunt et trouver le meilleur crédit immobilier ?
Réaliser une simulation gratuite

Photo 1 - Appartement à BEAUSOLEIL
Photo 1
Photo 2 - Appartement à BEAUSOLEIL
Photo 2
Photo 3 - Appartement à BEAUSOLEIL
Photo 3
Photo 4 - Appartement à BEAUSOLEIL
Photo 4
Photo 5 - Appartement à BEAUSOLEIL
Photo 5
Photo 6 - Appartement à BEAUSOLEIL
Photo 6
Photo 7 - Appartement à BEAUSOLEIL
Photo 7
Photo 8 - Appartement à BEAUSOLEIL
Photo 8
Ce site est protégé par reCAPTCHA la Politique de confidentialité et les Conditions d’utilisation de Google s’appliquent.
Obtenir un prêt immobilier au meilleur taux ?

En poursuivant votre navigation sans modifier vos paramètres, vous acceptez l'utilisation de cookies susceptibles de réaliser des statistiques de visite. Cliquez ici pour plus d'informations