Bénéficiez des services de nos partenaires locaux soigneusement sélectionnés
pour vous accompagner dans votre parcours d'achat immobilier

Bâtiment commercial 10 pièces de 1171m2 en zone d'activité à la croix valmer

— La Croix-Valmer 83420 —
2 600 000 €
1 171 m²
10 pièces
parkingbalcon/terrasse

Nos partenaires locaux
En vente locaux commerciaux et appartements dans la Zone d'Activité du Gourbenet à La Croix Valmer.
En Exclusivité.
Situé au cœur d’une zone d’activité dynamique du Golfe de Saint-Tropez, ce bâtiment de 10 pièces à usage commercial et résidentiel offre un excellent rendement locatif et un potentiel de valorisation supplémentaire.
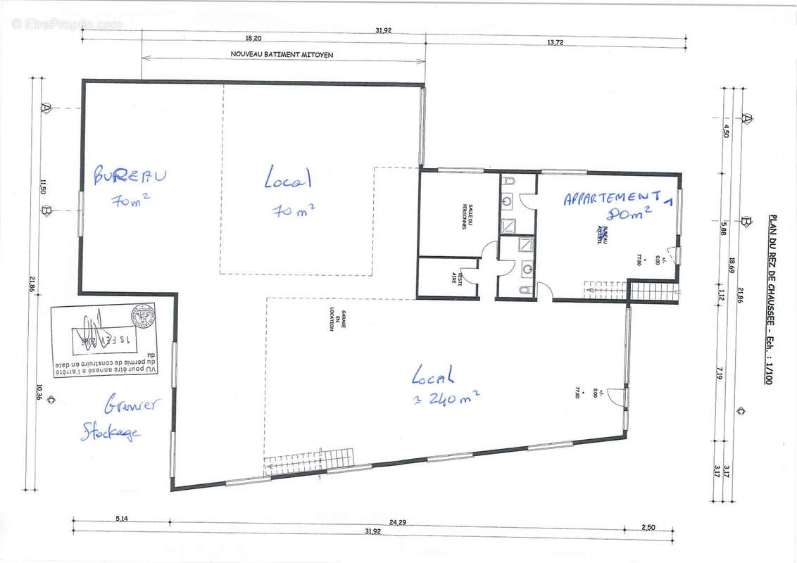
Sur une surface de terrain de 1058m2, ce bâtiment, en très bon état général, possède une surface bâtie totale de 1171m2 établie sur 3 niveaux avec une emprise au sol de 900m2.
Il se compose de plusieurs espaces commerciaux, des bureaux et 2 appartements. Actuellement tous les locaux sont loués, à l'exception de 2 bureaux d'une superficie de 70m2 chacun où des travaux sont à terminer.

Agencement des locaux :
- Au Sous-sol : 3 locaux + 1 garage - Au Rez-de-chaussée : 2 locaux, 1 local Bureaux, 1 Appartement T3 - 1er étage : 1 Appartement T4, 1 local de bureaux
Données financières :
- Revenu locatif estimé : 116040 € - Rentabilité brute estimée : 4,47% - Situation locative mixte (plusieurs locataires en place revenus immédiats)
Les + du Bien :
- Emplacement stratégique au sein d'une zone d'activité recherchée - Très bon état général du bâtiment - Mix Habitation/Commerce : diversification du revenu - Locaux avec potentiel d'aménagement supplémentaire - Rendement locatif attractif dans une région à forte demande.
Opportunité rare à saisir
Idéal investisseur ou professionnel souhaitant conjuguer emplacement et rentabilité.
Dossier complet sur demande.
Pour tout renseignement ou visite contactez Jonathan Gillard au [Coordonnées masquées]
'Les informations sur les risques auxquels ce bien est exposé sont disponibles sur le site Géorisques http://www.georisques.gouv.fr'
Agence L'Echappée Bleue Golfe de St Tropez - La Galiote - Avenue de la Plage - 83 310 Les Marines de Cogolin
Voir plus

Référence: 3025
Honoraires d'agence de 4% à la charge de l'acquéreur
DPE
A
B
C
D
E
F
G
GES
A
B
C
D
E
F
G

Prêt immobilier

Vous souhaitez connaître votre capacité d’emprunt et trouver le meilleur crédit immobilier ?
Réaliser une simulation gratuite

Appartement à LA CROIX-VALMER
Appartement à LA CROIX-VALMER
Appartement à LA CROIX-VALMER
Appartement à LA CROIX-VALMER
Appartement à LA CROIX-VALMER
Appartement à LA CROIX-VALMER
Appartement à LA CROIX-VALMER
Appartement à LA CROIX-VALMER
Appartement à LA CROIX-VALMER
Appartement à LA CROIX-VALMER
Ce site est protégé par reCAPTCHA la Politique de confidentialité et les Conditions d’utilisation de Google s’appliquent.
Obtenir un prêt immobilier au meilleur taux ?

En poursuivant votre navigation sans modifier vos paramètres, vous acceptez l'utilisation de cookies susceptibles de réaliser des statistiques de visite. Cliquez ici pour plus d'informations