Bénéficiez des services de nos partenaires locaux soigneusement sélectionnés
pour vous accompagner dans votre parcours d'achat immobilier

Paris viii - champs elysée

— Paris-8e 75008 —
1 000 000 €
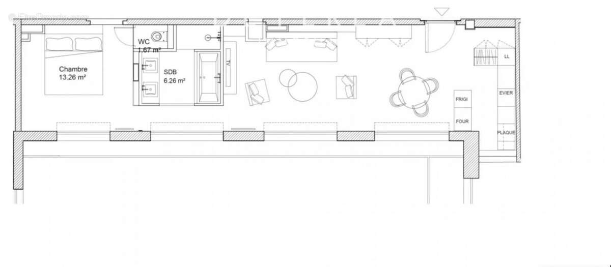
60 m²
3 pièces
balcon/terrasseascenseur

Nos partenaires locaux
Idéalement situé sur les Champs-Élysées, l'une des avenues les plus prisées du 8ᵉ arrondissement, ce superbe appartement de 60 m², niché au 8ᵉ étage d'un immeuble de standing, offre un confort moderne et un agencement parfaitement optimisé.

Il se compose d'un double séjour lumineux, permettant de créer un espace de vie généreux et chaleureux. La chambre, d'une superficie de 13,26 m², propose de beaux volumes et un environnement calme. Une salle de bains vient compléter la partie nuit.

Un balcon agrémentant l'appartement offre un extérieur rare dans le secteur, idéal pour profiter d'un espace ouvert en plein cœur du 8ᵉ arrondissement.

L'ensemble bénéficie de prestations qualitatives et d'un cadre de vie privilégié, à proximité immédiate des commerces, transports et adresses emblématiques du quartier.

Un bien élégant, fonctionnel et idéalement situé, parfait en résidence principale, pied-à-terre ou investissement patrimonial.
Voir plus

Référence: 86447778
Honoraires d'agence de 5.26% à la charge de l'acquéreur

Prêt immobilier

Vous souhaitez connaître votre capacité d’emprunt et trouver le meilleur crédit immobilier ?
Réaliser une simulation gratuite

Appartement à PARIS-8E
Appartement à PARIS-8E
Appartement à PARIS-8E
Appartement à PARIS-8E
Appartement à PARIS-8E
Appartement à PARIS-8E
Appartement à PARIS-8E
Appartement à PARIS-8E
Appartement à PARIS-8E
Appartement à PARIS-8E
Appartement à PARIS-8E
Ce site est protégé par reCAPTCHA la Politique de confidentialité et les Conditions d’utilisation de Google s’appliquent.
Obtenir un prêt immobilier au meilleur taux ?

En poursuivant votre navigation sans modifier vos paramètres, vous acceptez l'utilisation de cookies susceptibles de réaliser des statistiques de visite. Cliquez ici pour plus d'informations