A saisir! bureaux 223m² avec parkings à saint-martin-le-vinoux (38950)

— Saint-Martin-Le-Vinoux 38950 —
290 000 €
223 m²
11 pièces

Adresse : rue des Vingt Toises à Saint-Martin-le-Vinoux (38950)

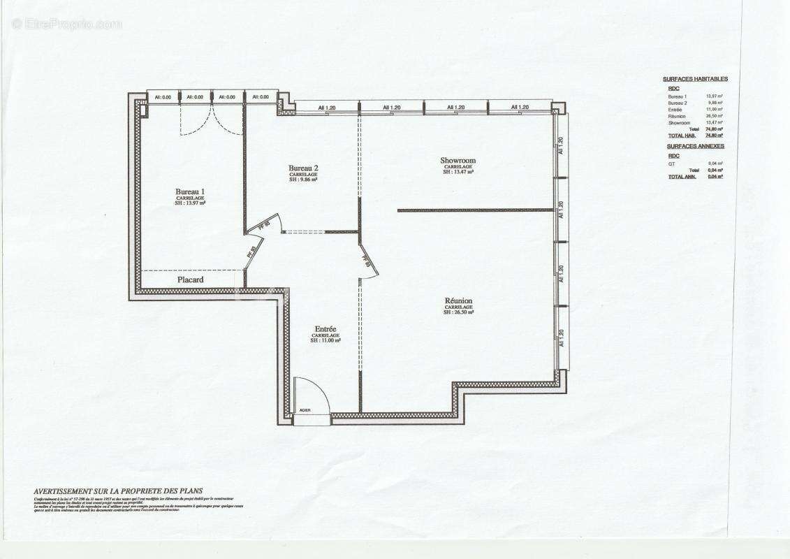
Situés au rez-de-chaussée d'un immeuble de bureaux récent, ces locaux professionnels lumineux et climatisés offrent un cadre de travail confortable et fonctionnel, idéal pour une entreprise souhaitant s'implanter à proximité immédiate de Grenoble.

Le bien se compose de deux lots distincts :

Premier local (148 m²) :
7 bureaux indépendants, un espace de rangement et une circulation fluide.

Deuxième local (environ 75 m²) :
2 bureaux, une salle de réunion, un showroom de 13 m² et une cuisine équipée.

Soit une surface totale d'environ 223 m², entièrement climatisée en réversible, offrant des prestations de qualité et un confort optimal toute l'année.

Atouts complémentaires :

9 places de stationnement privatives

Climatisation réversible dans l'ensemble des bureaux

Environnement calme et bien desservi

Taxe foncière : 5 421 € / an

Charges de copropriété : 6 044 € / an

Loyer actuel : 2 850 € HT / mois soit 11.8% de rentabilité brute!

Locaux libérés en février 2026

Ces bureaux conviendront parfaitement à un acquéreur utilisateur souhaitant anticiper son installation ou à un investisseur recherchant un bien sécurisé avant occupation.

Cette annonce référence 307607 vous est présentée par votre agent commercial BSK Immobilier ALAIN JONG PAO (EI) immatriculé au RSAC de GRENOBLE (38000) sous le numéro 7523[Coordonnées masquées].

Prix du bien : 290 000,00 €
Les honoraires d'agence sont à la charge du vendeur.

A propos de la copropriété :
Pas de procédure en cours.
Nombre de lots : 12
Charges prévisionnelles annuelles : 6 044,00 €

A propos des performances énergétiques :
Date de réalisation du diagnostic énergétique : 17/10/2025
Score DPE : 66 kWhEP/m²/an
Score GES : 1 kgepCO2/m²/an
Montant estimé des dépenses annuelles d'énergie pour un usage standard : entre 1000.00 € et 2000.00 € par an. Prix moyens des énergies indexés sur l'année 2022 (abonnements compris).

Les informations sur les risques auxquels ce bien est exposé sont disponibles sur le site Géorisques : www.georisques.gouv.fr
Voir plus

Référence: 307607
Bien en copropriété. Nombre de lots : 12. Charges de copropriété : 503 €.
Honoraires à la charge du vendeur.
DPE
A
B
C
D
E
F
G
GES
A
B
C
D
E
F
G

Prêt immobilier

Vous souhaitez connaître votre capacité d’emprunt et trouver le meilleur crédit immobilier ?
Réaliser une simulation gratuite

Commerce à SAINT-MARTIN-LE-VINOUX
Commerce à SAINT-MARTIN-LE-VINOUX
Commerce à SAINT-MARTIN-LE-VINOUX
Commerce à SAINT-MARTIN-LE-VINOUX
Commerce à SAINT-MARTIN-LE-VINOUX
Ce site est protégé par reCAPTCHA la Politique de confidentialité et les Conditions d’utilisation de Google s’appliquent.
Obtenir un prêt immobilier au meilleur taux ?

En poursuivant votre navigation sans modifier vos paramètres, vous acceptez l'utilisation de cookies susceptibles de réaliser des statistiques de visite. Cliquez ici pour plus d'informations