Bénéficiez des services de nos partenaires locaux soigneusement sélectionnés
pour vous accompagner dans votre parcours d'achat immobilier

Christophe michaudelle – exclusivite - capifrance vous propose proche de meaux, à chambry : propriété 260 m² - zone ua - 10 pièc

— Meaux 77100 —
423 000 €
261 m² / 990 m²
10 pièces
parkingjardinpiscine

Nos partenaires locaux
Christophe Michaudelle – EXCLUSIVITE - CAPIFRANCE vous propose proche de Meaux, à Chambry :
Propriété 260 m² - ZONE UA - 10 pièces - 5 chambres - pièces d'eau - beau jardin plat et clos avec nombreux stationnements possible – 1 dépendance avec 1 garage, pièces, atelier 120 m²

Je vous propose dans un secteur au calme cette charmante maison familiale regroupant plusieurs bâtiments, lumineuse et bien exposée.
Située en zone UA avec de nombreuses possibilités de stationnements, des projets d'optimisation des espaces peuvent également être étudiés.

Fonctionnelle avec ses nombreux rangements, ses stationnements. Une grande dépendance avec mezzanine et atelier.
Proche des commodités.

un VRAI COUP DE COEUR, maison avec travaux.

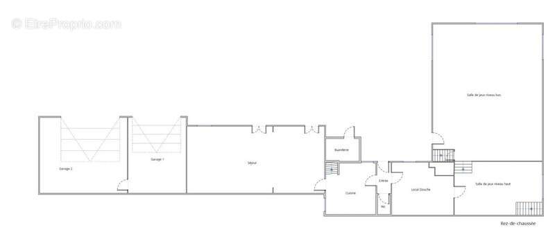
Elle se compose :

Corps de bâtiment 1 :
Une entrée – une cuisine aménagée - un séjour avec son insert – 5 chambres – pièce avec rangement - pièces d'eau

Corps de bâtiment 2 :
Séjour mezzanine avec chauffage insert - 2 pièces - cave

Extérieur :
Corps de bâtiment 3 :
Dépendance avec atelier, pièces et mezzanine (120 m²)
Un terrain clos, plat et arboré (990 m² environ)
Terrasse
Un abri
Un espace potager
Une piscine

Informations complémentaires :
Commodités à pied
Au calme
Fibre
DPE en D
Fenêtres (double vitrage) PVC
Chauffage gaz et bois
Isolation ITE partielle

Vous êtes intéressés, vous avez besoin d'informations complémentaires ?
Contactez moi, je serai ravi de vous faire découvrir cette belle maison.

Autres informations :
Accès commodités (transports, écoles, gare ligne P, axes routiers, commerces, espaces naturels, ...)
Gare de Meaux ligne P à 6 kms (Accès Paris Gare de l'est en 25 min)
Gare TGV et RER A à 20 kms
A 25 kms du Val d'Europe
A 25 kms de l'Aéroport de Roissy Charles de Gaulle
Les honoraires sont à la charge du vendeur.
Les informations sur les risques auxquels ce bien est exposé sont disponibles sur le site Géorisques : www. georisques. gouv. fr.

Réseau Immobilier CAPIFRANCE - Votre agent commercial (RSAC N°807 514 039 - Greffe de MEAUX) Christophe MICHAUDELLE Entrepreneur Individuel à Responsabilité Limitée [Coordonnées masquées] - Réf.931128
Voir plus

Référence: 340937531217
Honoraires à la charge du vendeur.
DPE
A
B
C
D
E
F
G
GES
A
B
C
D
E
F
G

Prêt immobilier

Vous souhaitez connaître votre capacité d’emprunt et trouver le meilleur crédit immobilier ?
Réaliser une simulation gratuite

Maison à MEAUX
Maison à MEAUX
Maison à MEAUX
Maison à MEAUX
Maison à MEAUX
Maison à MEAUX
Maison à MEAUX
Maison à MEAUX
Maison à MEAUX
Maison à MEAUX
Maison à MEAUX
Maison à MEAUX
Maison à MEAUX
Maison à MEAUX
Maison à MEAUX
Maison à MEAUX
Maison à MEAUX
Maison à MEAUX
Maison à MEAUX
Maison à MEAUX
Maison à MEAUX
Maison à MEAUX
Maison à MEAUX
Maison à MEAUX
Maison à MEAUX
Maison à MEAUX
Maison à MEAUX
Maison à MEAUX
Maison à MEAUX
Maison à MEAUX
Maison à MEAUX
Maison à MEAUX
Maison à MEAUX
Maison à MEAUX
Maison à MEAUX
Maison à MEAUX
Maison à MEAUX
Maison à MEAUX
Ce site est protégé par reCAPTCHA la Politique de confidentialité et les Conditions d’utilisation de Google s’appliquent.
Obtenir un prêt immobilier au meilleur taux ?

En poursuivant votre navigation sans modifier vos paramètres, vous acceptez l'utilisation de cookies susceptibles de réaliser des statistiques de visite. Cliquez ici pour plus d'informations