Commerce 800m² à ayse

— Ayse 74130 —
999 000 €
800 m²

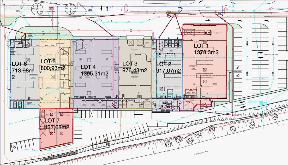
Entrepôts neufs de 800 à 1 398 m² à vendre ? AYSE SKYLINE REAL ESTATE vous propose à la vente plusieurs entrepôts / cellules d'activité.

Situé dans un
emplacement stratégique au c?ur de la vallée de l'Arve, sur l'axe Genève ? Chamonix ? Lyon. Ces bâtiments bénéficient d'un accès direct à l'A40 (2 min) et d'une excellente visibilité dans un secteur très dynamique, regroupant de nombreuses entreprises industrielles et tertiaires.

Atouts du site :

30 min de Genève / 35 min d'Annecy

Accès poids lourds facilité

Stationnement privatif

Environnement professionnel structuré et attractif

Caractéristiques techniques :

Structures métalliques robustes, toiture plate

Hauteur sous-poutre jusqu'à 6,50 m

Portes sectionnelles motorisées

Menuiseries acier double vitrage

Chauffage gaz + climatisation réversible

Compteurs eau / électricité individuels

Bâtiments lumineux et facilement aménageables

Lots disponibles :

Lot 2 : 797 m² + sous-sol 108 m² ? 1 150 000 euros FAI

Lot 3 : 806 m² + sous-sol 88 m² ? 1 125 000 euros FAI

Lot 4 : 1 225 m² + sous-sol 173 m² ? 1 760 000 euros FAI

Lot 5 : 800 m² ? 999 000 euros FAI

Honoraires à la charge du vendeur.

Les informations sur les risques auxquels ce bien est exposé sont disponibles sur le site Géorisques : www.georisques.gouv.fr

Contactez notre agent Hugo Viard au [Coordonnées masquées] pour organiser une visite ou obtenir plus d'informations.
Voir plus

Référence: AG1123-86351544
Honoraires à la charge du vendeur.

Prêt immobilier

Vous souhaitez connaître votre capacité d’emprunt et trouver le meilleur crédit immobilier ?
Réaliser une simulation gratuite

Commerce à AYSE
Commerce à AYSE
Commerce à AYSE
Commerce à AYSE
Commerce à AYSE
Ce site est protégé par reCAPTCHA la Politique de confidentialité et les Conditions d’utilisation de Google s’appliquent.
Obtenir un prêt immobilier au meilleur taux ?

En poursuivant votre navigation sans modifier vos paramètres, vous acceptez l'utilisation de cookies susceptibles de réaliser des statistiques de visite. Cliquez ici pour plus d'informations