Bénéficiez des services de nos partenaires locaux soigneusement sélectionnés
pour vous accompagner dans votre parcours d'achat immobilier

Spacieux t4 de 92m² au pied du métro - porte de vincennes - paris 12

— Paris-12e 75012 —
750 000 €
92 m²
4 pièces
balcon/terrasse

Nos partenaires locaux
Bienvenue chez, l'agence familiale qui s'engage à un service d'exception. Découvrez une présentation soignée de ce bien : des photos pro, un plan détaillé et une visite virtuelle immersive pour vous projeter. Faites confiance à notre expertise pour transformer vos projets immobiliers en réussites remarquables.

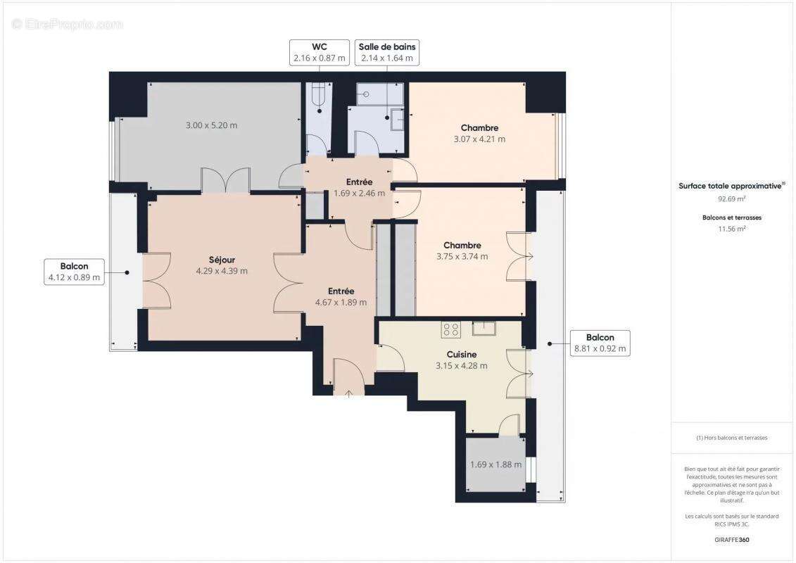
Découvrez ce spacieux 4 pièces à rénover de 92m², au 2ème étage par ascenseur d'un immeuble semi-récent de 1968 bien tenu, situé au pied du métro ligne 1 (Métro Porte de Vincennes).

L'appartement s'ouvre sur une belle entrée composée de rangements intégrés, distribuant en étoile l'ensemble des pièces : le salon de 20m², les 3 chambres de 12, 14 et 15m², la grande cuisine indépendante de 10m², la salle de douche et les WC séparés.

2 des 3 chambres, ainsi que la cuisine, ont un accès au long balcon filant donnant plein sud sur le jardin de la copropriété, avec une vue dégagée sans aucun vis-à-vis.

À noter qu'il est possible de ne garder que 2 chambres pour faire un double séjour de 35m².

Enfin, une cave et un parking complètent ce bien.

Les + du bien :

- Au pied du métro
- Aucun vis-à-vis
- Grand balcon plein sud sur jardin
- DPE D
- Ascenseur
- Parking
- Cave

À noter :


- Charges courantes : 787€ / trimestre
- Chauffage et eau chaude collectif

- Etat du bien : À rénover

- Le bien est soumis au statut de copropriété

- 20 lots (41 copropriétaires)

- Lot n°17
- Quote part : 4085 / 100000

- Taxe foncière : 1932€
- Pas de procédure en cours

Consommation conventionnelle : 
196 kWhEP/m2.an (D)

Estimation des émissions : 42 kg CO2/m2.an (D)

Prix de vente : 721 154 € TTC (hors honoraires agence)

Honoraires à la charge de l'acquéreur de 28 846 € représentant un total de 750 000 € (honoraires d'agence inclus), soit 4% du prix de vente.

Ce bien a retenu votre intérêt ? Pour organiser la visite avec nous, rien de plus simple, prenez rendez-vous en ligne au moment qui vous convient le mieux.

Les informations sur les risques auxquels ce bien est exposé sont disponibles sur le site Géorisques : www.georisques.gouv.fr

Annonce rédigée sous la responsabilité éditoriale de, agent commercial (EI), immatriculé au RSAC de Paris sous le n° 803 300 698, sans détention de fonds, agissant pour le compte de la SARL, au capital de 5 000 €, immatriculée sous le SIREN n° 837 704 584, titulaire de la carte professionnelle n° CPI 75[Coordonnées masquées]25 842 délivrée par la CCI de Paris Île-de-France, dont le représentant légal est, ayant son siège social au 12 rue des Halles, 75001 Paris.

Bien présenté par Agences de France par délégation.
Agences de France – SIREN : 899413603 – Titulaire de la carte T : 29[Coordonnées masquées]00009 non habilité à percevoir des fonds
Voir plus

Référence: getkey_u_499522352
Honoraires d'agence de 4% à la charge de l'acquéreur
DPE
A
B
C
D
E
F
G
GES
A
B
C
D
E
F
G

Prêt immobilier

Vous souhaitez connaître votre capacité d’emprunt et trouver le meilleur crédit immobilier ?
Réaliser une simulation gratuite

Appartement à PARIS-12E
Appartement à PARIS-12E
Appartement à PARIS-12E
Appartement à PARIS-12E
Appartement à PARIS-12E
Appartement à PARIS-12E
Appartement à PARIS-12E
Appartement à PARIS-12E
Appartement à PARIS-12E
Appartement à PARIS-12E
Appartement à PARIS-12E
Appartement à PARIS-12E
Appartement à PARIS-12E
Ce site est protégé par reCAPTCHA la Politique de confidentialité et les Conditions d’utilisation de Google s’appliquent.
Obtenir un prêt immobilier au meilleur taux ?

En poursuivant votre navigation sans modifier vos paramètres, vous acceptez l'utilisation de cookies susceptibles de réaliser des statistiques de visite. Cliquez ici pour plus d'informations