Bénéficiez des services de nos partenaires locaux soigneusement sélectionnés
pour vous accompagner dans votre parcours d'achat immobilier

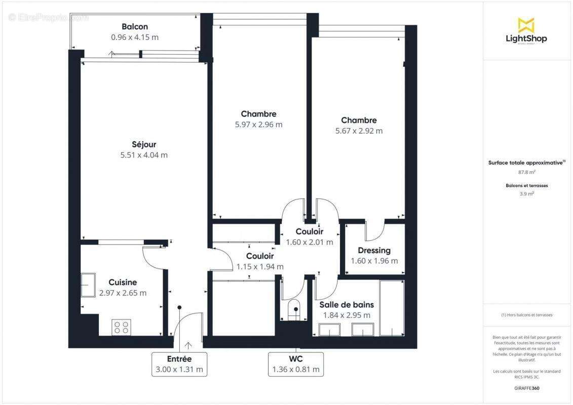
Courbevoie – terrasse des reflets 3 pièces – 86 m² – balcon – cave

— Courbevoie 92400 —
509 000 €
86 m²
3 pièces
balcon/terrasseascenseur

Nos partenaires locaux
Bienvenue chez une agence familiale qui s'engage à un service d'exception. Découvrez une présentation soignée de ce bien : des photos du programme et un plan détaillé pour vous projeter. Faites confiance à notre expertise pour transformer vos projets immobiliers en réussites remarquables.

À deux pas de l'Esplanade de La Défense et du centre commercial Les 4 Temps, découvrez ce spacieux 3 pièces de 85,63 m², niché dans une copropriété sécurisée des années 80 avec gardien, digicode et interphone.
Idéalement situé dans un secteur recherché et dynamique, il offre confort, luminosité et beaux volumes.

Agencement optimisé
- Séjour lumineux ouvrant sur un balcon de 4 m², parfait pour vos instants de détente
- Cuisine indépendante moderne et équipée
- Deux grandes chambres de 17 m² et 18 m², dont une avec dressing fermé de 3 m²
- Salle de bain spacieuse avec baignoire et double vasque
- WC séparés
- Nombreux rangements intégrés

Les + qui font la différence :
- Résidence bien entretenue avec 2 ascenseurs + monte-charge
- Cave incluse
- Chauffage collectif urbain (compris dans les charges)
- Appartement libre – emménagement rapide possible
- Charges annuelles : 3 990 € (chauffage, eau chaude/froide, gardien, entretien, syndic)
- Taxe foncière : 798 €

Un cadre de vie idéal
- À proximité immédiate : transports, commerces, écoles et bureaux de La Défense.
- Un emplacement stratégique, parfait aussi bien pour une résidence principale que pour un investissement locatif de qualité.

Montant estimé des dépenses annuelles d'énergie : entre 1 620 € et 2 250 € (indexé 2021–2023).
Copropriété de 207 lots principaux

Une opportunité rare à saisir dans un quartier vivant et parfaitement desservi !

Prix de vente : 509 000€ TTC (Honoraires à la charge du vendeur)

Les informations sur les risques auxquels ce bien est exposé sont disponibles sur le site Géorisques : : www.georisques.gouv.fr

Annonce rédigée sous la responsabilité éditoriale d'un agent commercial (EI), immatriculé au RSAC de PONTOISE, sans détention de fonds, agissant pour le compte de la SARL immobilier, au capital de 5 000 €, immatriculée, titulaire de la carte professionnelle n° CPI 75[Coordonnées masquées]25 842 délivrée par la CCI de Paris Île-de-France, dont le représentant légal est, ayant son siège social au 12 rue des Halles, 75001 Paris.

Bien présenté par Agences de France par délégation.
Agences de France – SIREN : 899413603 – Titulaire de la carte T : 29[Coordonnées masquées]00009 non habilité à percevoir des fonds
Voir plus

Référence: getkey_u_499406615
Honoraires à la charge du vendeur.
DPE
A
B
C
D
E
F
G
GES
A
B
C
D
E
F
G

Prêt immobilier

Vous souhaitez connaître votre capacité d’emprunt et trouver le meilleur crédit immobilier ?
Réaliser une simulation gratuite

Appartement à COURBEVOIE
Appartement à COURBEVOIE
Appartement à COURBEVOIE
Appartement à COURBEVOIE
Appartement à COURBEVOIE
Appartement à COURBEVOIE
Appartement à COURBEVOIE
Appartement à COURBEVOIE
Appartement à COURBEVOIE
Appartement à COURBEVOIE
Appartement à COURBEVOIE
Appartement à COURBEVOIE
Appartement à COURBEVOIE
Appartement à COURBEVOIE
Appartement à COURBEVOIE
Appartement à COURBEVOIE
Appartement à COURBEVOIE
Appartement à COURBEVOIE
Appartement à COURBEVOIE
Appartement à COURBEVOIE
Appartement à COURBEVOIE
Ce site est protégé par reCAPTCHA la Politique de confidentialité et les Conditions d’utilisation de Google s’appliquent.
Obtenir un prêt immobilier au meilleur taux ?

En poursuivant votre navigation sans modifier vos paramètres, vous acceptez l'utilisation de cookies susceptibles de réaliser des statistiques de visite. Cliquez ici pour plus d'informations