Bénéficiez des services de nos partenaires locaux soigneusement sélectionnés
pour vous accompagner dans votre parcours d'achat immobilier

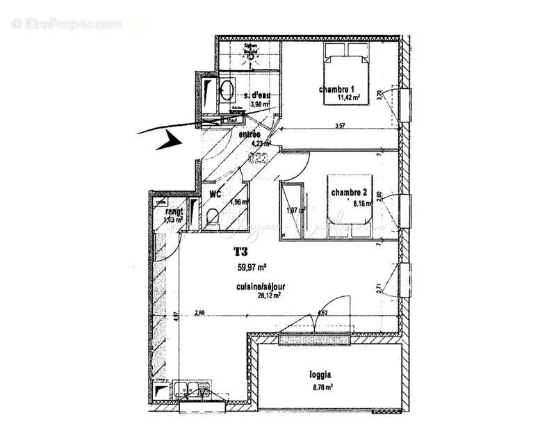
Appartement 3 pièces - brive la gaillarde (19)

— Brive-La-Gaillarde 19100 —
182 000 €
60 m²
3 pièces
parkingbalcon/terrasseascenseur

Nos partenaires locaux
Lumière, confort et vue dégagée au cœur de BRIVE

Perché au 4ᵉ étage avec ascenseur de la résidence Villa Saint-Joseph (livrée en 2015), cet appartement T3 de près de 60 m² conjugue parfaitement calme, modernité et emplacement central.

Atmosphère douce et soignée dès l'entrée : la pièce de vie baignée de lumière s'ouvre sur une jolie loggia plein sud, un véritable prolongement du séjour où l'on profite du soleil toute la journée.

La cuisine, ouverte et bien pensée, s'intègre naturellement à l'espace de vie.
Côté nuit : deux chambres, une salle d'eau contemporaine, des WC séparés et de beaux volumes sans aucune perte d'espace.

Le confort est au rendez-vous :
chauffage au sol (chaudière collective gaz),
climatisation réversible,
résidence sécurisée avec ascenseur et garage fermé en sous-sol,
VMC, double vitrage, volets roulants électriques

Vue dégagée sur les toits de Brive, aucun vis-à-vis, tout à pied…
Un cadre de vie paisible et pratique à la fois, à deux pas du centre-ville, des commerces et du marché.

1195 € Taxe foncière

Un appartement facile à vivre, lumineux et parfaitement entretenu — idéal pour ceux qui aiment conjuguer confort moderne et sérénité urbaine.

Modalités de visite
Les visites se font sur rendez-vous après un premier échange téléphonique.
Conformément à l'article L.561-5 du Code monétaire et financier, il vous sera demandé avant toute visite :
- une copie de pièce d'identité pour chaque visiteur,
- ainsi qu'une attestation de faisabilité financière (ou de disponibilité des fonds).
Nombre de lots de la copropriété : 28, Montant moyen annuel de la quote-part de charges (budget prévisionnel)(ADF Trimestriel) : 3600€ soit 300€ par mois. Les honoraires sont à la charge du vendeur.
Les informations sur les risques auxquels ce bien est exposé sont disponibles sur le site Géorisques : www. georisques. gouv. fr.

Réseau Immobilier CAPIFRANCE - Votre agent commercial (RSAC N°983 160 110 - Greffe de BRIVE LA GAILLARDE) Marie CHEYROUX Entrepreneur Individuel [Coordonnées masquées] - Réf.929582
Voir plus

Référence: 340938669554
Bien en copropriété. Nombre de lots : 28. Charges de copropriété : 300 €.
Honoraires à la charge du vendeur.
DPE
A
B
C
D
E
F
G
GES
A
B
C
D
E
F
G

Prêt immobilier

Vous souhaitez connaître votre capacité d’emprunt et trouver le meilleur crédit immobilier ?
Réaliser une simulation gratuite

Appartement à BRIVE-LA-GAILLARDE
Appartement à BRIVE-LA-GAILLARDE
Appartement à BRIVE-LA-GAILLARDE
Appartement à BRIVE-LA-GAILLARDE
Appartement à BRIVE-LA-GAILLARDE
Appartement à BRIVE-LA-GAILLARDE
Appartement à BRIVE-LA-GAILLARDE
Appartement à BRIVE-LA-GAILLARDE
Appartement à BRIVE-LA-GAILLARDE
Appartement à BRIVE-LA-GAILLARDE
Appartement à BRIVE-LA-GAILLARDE
Appartement à BRIVE-LA-GAILLARDE
Appartement à BRIVE-LA-GAILLARDE
Appartement à BRIVE-LA-GAILLARDE
Appartement à BRIVE-LA-GAILLARDE
Appartement à BRIVE-LA-GAILLARDE
Appartement à BRIVE-LA-GAILLARDE
Ce site est protégé par reCAPTCHA la Politique de confidentialité et les Conditions d’utilisation de Google s’appliquent.
Obtenir un prêt immobilier au meilleur taux ?

En poursuivant votre navigation sans modifier vos paramètres, vous acceptez l'utilisation de cookies susceptibles de réaliser des statistiques de visite. Cliquez ici pour plus d'informations