Maison 171m² à cozes

— Cozes 17120 —
272 740 €
171 m² / 800 m²
5 pièces
parkingjardin

17120 COZES – COMMODITÉS 700m – MAISON CHARENTAISE – 170 m² – 5 PIÈCES – 4 CHAMBRES – JARDIN – DÉPENDANCES 250m² À RÉNOVER

effiCity, l'agence qui estime votre bien en ligne, vous propose cette MAISON CHARENTAISE située à COZES, dans un environnement CALME, à proximité de toutes les COMMODITÉS et du centre bourg de COZES.

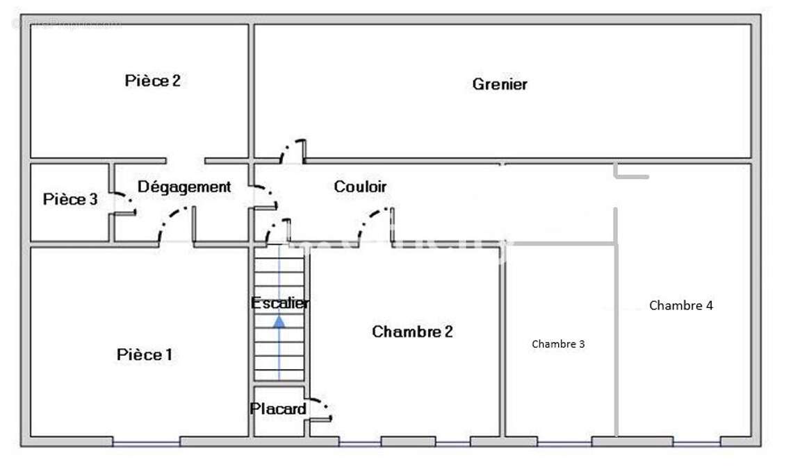
D'une surface habitable de 170 m², elle se compose, au rez-de-chaussée, d'une cuisine aménagée INDÉPENDANTE, d'un cellier, d'un séjour de 31 m², d'une chambre, d'un WC indépendant, d'une salle d'eau et d'un débarras.
À l'étage, le palier dessert trois chambres spacieuses ainsi que 90 m² de combles aménageables offrant de nombreuses possibilités d'agrandissement.

Un ancien chai de 90 m², avec piliers et charpente d'origine, ainsi que plusieurs dépendances pour une surface totale de 70m² à rénover offrent de multiples axes de projet.
Un jardin d'environ 500 m² entièrement clos, un ancien poulailler et un puits viennent compléter ce bien.

Pour plus d'informations ou pour organiser une visite, veuillez contacter Alexia BAUGE par téléphone au [Coordonnées masquées] ou par mail à l'adresse suivante : [Coordonnées masquées]
.
Les informations sur les risques auxquels ce bien est exposé sont disponibles sur le site Georisque : georisques. gouv. fr
Alexia Bauge - EI - est Agent Commercial mandataire en immobilier, immatriculé au Registre Spécial des Agents Commerciaux du Tribunal de Commerce de Saintes sous le n°927638809.
Siège social du mandant : effiCity, 48 avenue de Villiers - 75017 PARIS - Société par Actions Simplifiée, société au capital de 132 373,05 euros, immatriculée au RCS Paris 497 617 746 et titulaire de la Carte professionnelle CPI 75[Coordonnées masquées]02 025 - CCI Paris IDF - Caisse de Garantie : GALIAN Assurances 89 rue de la Boétie 75008 Paris
Voir plus

Référence: 197366
Honoraires d'agence de 4.9% à la charge de l'acquéreur
Barème des honoraires
DPE
A
B
C
D
E
F
G
GES
A
B
C
D
E
F
G

Prêt immobilier

Vous souhaitez connaître votre capacité d’emprunt et trouver le meilleur crédit immobilier ?
Réaliser une simulation gratuite

Maison à COZES
Maison à COZES
Maison à COZES
Maison à COZES
Maison à COZES
Maison à COZES
Maison à COZES
Maison à COZES
Maison à COZES
Maison à COZES
Maison à COZES
Maison à COZES
Maison à COZES
Maison à COZES
Maison à COZES
Maison à COZES
Maison à COZES
Maison à COZES
Maison à COZES
Maison à COZES
Maison à COZES
Ce site est protégé par reCAPTCHA la Politique de confidentialité et les Conditions d’utilisation de Google s’appliquent.
Obtenir un prêt immobilier au meilleur taux ?

En poursuivant votre navigation sans modifier vos paramètres, vous acceptez l'utilisation de cookies susceptibles de réaliser des statistiques de visite. Cliquez ici pour plus d'informations