Bénéficiez des services de nos partenaires locaux soigneusement sélectionnés
pour vous accompagner dans votre parcours d'achat immobilier

Exclusivité - craponne - maison de 89m² carrez et 183m² utiles sur terrain arboré 900m² environ

— Craponne 69290 —
399 000 €
89 m²
4 pièces
parking

Nos partenaires locaux
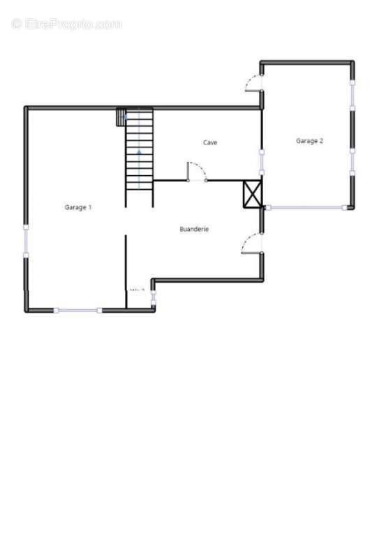
Située à deux pas de l'Intermarché de Craponne et de tous les commerces sur un beau terrain plat et arboré de 900m² environ, maison sur deux niveaux comprenant une partie à vivre de 89m² au 1er étage et des espaces généreux de stockage au RDC. Actuellement configurée en T3bis avec séjour éclairé par une grande baie vitrée ouvrant sur balcon à l'ouest, salle à manger semi-ouverte, cuisine indépendante, 2 chambres et une salle d'eau, les volumes du rez-de-chaussée permettent d'envisager 2 chambres supplémentaires tout en conservant un garage indépendant, une cave et une buanderie/chaufferie. De nombreux aménagements sont possibles allant de la simple remise au goût du jour à la redistribution des pièces. Visite virtuelle sur demande. Chauffage au fioul - menuiseries en double vitrage - Foyer insert

Les informations sur les risques auxquels ce bien est exposé sont disponibles sur le site Géorisques : www.georisques.gouv.fr
Voir plus

Référence: 158
Honoraires à la charge du vendeur.
DPE
A
B
C
D
E
F
G
GES
A
B
C
D
E
F
G

Prêt immobilier

Vous souhaitez connaître votre capacité d’emprunt et trouver le meilleur crédit immobilier ?
Réaliser une simulation gratuite

Maison à CRAPONNE
Maison à CRAPONNE
Maison à CRAPONNE
Maison à CRAPONNE
Maison à CRAPONNE
Maison à CRAPONNE
Maison à CRAPONNE
Maison à CRAPONNE
Maison à CRAPONNE
Maison à CRAPONNE
Ce site est protégé par reCAPTCHA la Politique de confidentialité et les Conditions d’utilisation de Google s’appliquent.
Obtenir un prêt immobilier au meilleur taux ?

En poursuivant votre navigation sans modifier vos paramètres, vous acceptez l'utilisation de cookies susceptibles de réaliser des statistiques de visite. Cliquez ici pour plus d'informations