Bénéficiez des services de nos partenaires locaux soigneusement sélectionnés
pour vous accompagner dans votre parcours d'achat immobilier

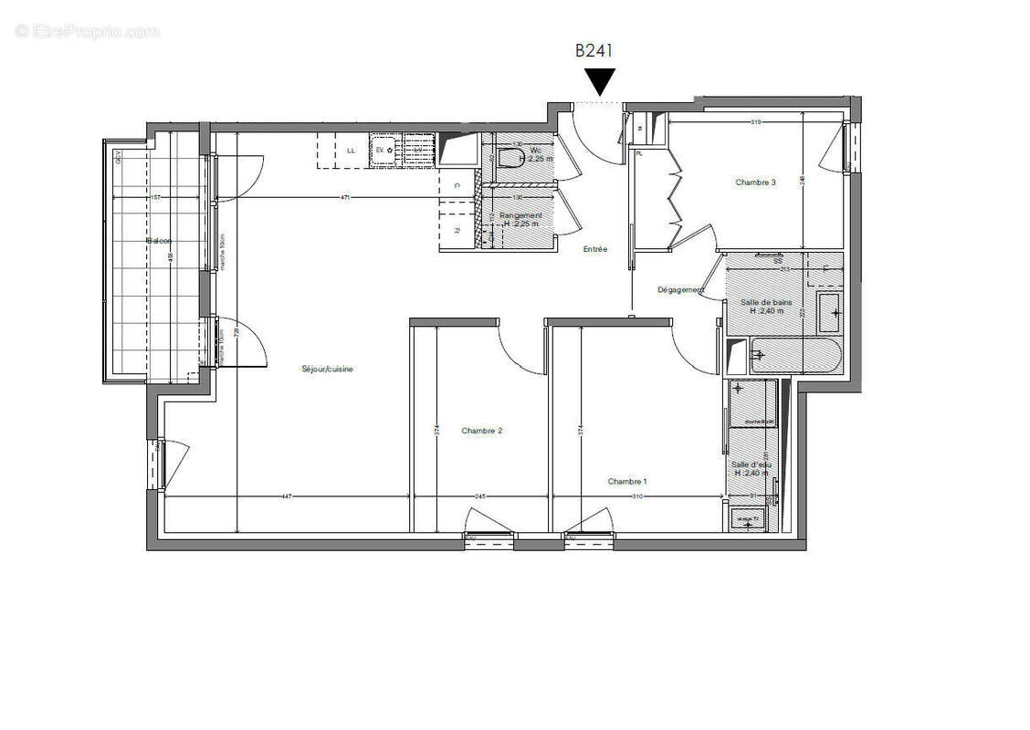
Caluire-et-cuire- superbe t4 de 79,5 m²

— Caluire-Et-Cuire 69300 —
400 000 €
80 m²
4 pièces
parkingbalcon/terrasseascenseur

Nos partenaires locaux
Construction de 2022, cet appartement T4 de 79,5 m² se situe au sein d'une résidence de standing, élégante et parfaitement entretenue. En retrait de la rue et niché en étage élevé, il offre un cadre de vie calme, lumineux et extrêmement confortable. Il offre un séjour lumineux avec cuisine ouverte haut de gamme sur-mesure signée Les Cuisines d'Arnaud, donnant sur un balcon de 7 m² environ, trois chambres dont une suite parentale, une salle de bain, un WC séparé, une buanderie et de nombreux rangements. Garage possible en sus. Résidence récente, sécurisée, avec local à vélos, garantie décennale. A visiter sans tarder ! Pour tout renseignement et contact Mélanie DAVRIL [Coordonnées masquées] LAFORET CROIX-ROUSSE. Copropriété de 76 lots - dont 39 lots habitation. (Pas de procédure en cours). Charges annuelles : 2050 euros. MELANIE DAVRIL (EI) Agent Commercial - Numéro RSAC : 795247626 - LYON.
Voir plus

Référence: 01177
Bien en copropriété. Nombre de lots : 76. Charges de copropriété : 2050 €.
Honoraires à la charge du vendeur.
Barème des honoraires
DPE
A
B
C
D
E
F
G
GES
A
B
C
D
E
F
G

Prêt immobilier

Vous souhaitez connaître votre capacité d’emprunt et trouver le meilleur crédit immobilier ?
Réaliser une simulation gratuite

Appartement à CALUIRE-ET-CUIRE
Appartement à CALUIRE-ET-CUIRE
Appartement à CALUIRE-ET-CUIRE
Appartement à CALUIRE-ET-CUIRE
Appartement à CALUIRE-ET-CUIRE
Appartement à CALUIRE-ET-CUIRE
Appartement à CALUIRE-ET-CUIRE
Appartement à CALUIRE-ET-CUIRE
Appartement à CALUIRE-ET-CUIRE
Appartement à CALUIRE-ET-CUIRE
Appartement à CALUIRE-ET-CUIRE
Appartement à CALUIRE-ET-CUIRE
Appartement à CALUIRE-ET-CUIRE
Appartement à CALUIRE-ET-CUIRE
Appartement à CALUIRE-ET-CUIRE
Ce site est protégé par reCAPTCHA la Politique de confidentialité et les Conditions d’utilisation de Google s’appliquent.
Obtenir un prêt immobilier au meilleur taux ?

En poursuivant votre navigation sans modifier vos paramètres, vous acceptez l'utilisation de cookies susceptibles de réaliser des statistiques de visite. Cliquez ici pour plus d'informations