Bénéficiez des services de nos partenaires locaux soigneusement sélectionnés
pour vous accompagner dans votre parcours d'achat immobilier

Maison 260m² à aussonne

— Aussonne 31840 —
320 000 €
260 m² / 2 192 m²
9 pièces
balcon/terrassejardin

Nos partenaires locaux
Iad France - Manon Demoyen vous propose : Superbe maison des années 70

Venez découvrir avec moi cette maison située dans la campagne de Merville (chemin de Ducros).
Vous serez séduits par ses volumes exceptionnels, son escalier majestueux ou encore son cadre calme et verdoyant.

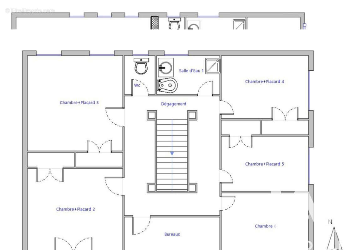
Au RDC vous y trouverez un séjour avec cuisine semi-ouverte, une arrière cuisine, une autre pièce de vie, une première chambre, une première salle d'eau et des wc.

À l'étage vous y retrouverez 5 chambres supplémentaires aux volumes généreux, une salle d'eau et des toilettes. Le hall reste lumineux en toute saison grâce à son plafond en carreaux de verre, lui donnant une esthétique unique.

La toiture de la maison a été entièrement refaite. Il vous restera des travaux de rénovation à prévoir :
- Rénovation énergétique : installation du double vitrage (actuellement présent uniquement dans la cuisine et les pièces d'eau) et remplacement du système de chauffage (actuellement une cuve à fioul).
- Rénovation esthétique : pose d'une cuisine, réfection des deux salles d'eau et des deux WC, modernisation des sols et des murs.
Prévoir 45 800¤ de travaux de rénovation énergétique pour un DPE C (isolation des murs, isolation du plancher bas et changement du système de ventilation).

Vous profiterez également d'un très grand garage.
Le terrain est piscinable.
La maison est hors zone d'exposition au bruit et dispose d'un système d'alarme.

La route est très peu passante : vous bénéficierez d'une vraie ambiance de campagne tout en restant proche de tout, à moins de 5 minutes des commerces de Merville ou Grenade.

Pour plus d'informations, n'hésitez pas à me contacter.

Honoraires d'agence à la charge du vendeur.
Information d'affichage énergétique sur ce bien : classe ENERGIE E indice 204 et classe CLIMAT E indice 56. Les informations sur les risques auxquels ce bien est exposé, y compris l'obligation légale de débroussaillement, sont disponibles sur le site Géorisques : http://www.georisques.gouv.fr.
La présente annonce immobilière a été rédigée sous la responsabilité éditoriale de Mme Manon Demoyen mandataire indépendant en immobilier (sans détention de fonds), agent commercial de la SAS I@D France immatriculé au RSAC de toulouse sous le numéro 853668234, titulaire de la carte de démarchage immobilier pour le compte de la société I@D France SAS.
Informations LOI ALUR :
Honoraires charge vendeur. (gedeon_6727_32062479)
Voir plus

Référence: 1872954
Honoraires à la charge du vendeur.
DPE
A
B
C
D
E
F
G
GES
A
B
C
D
E
F
G

Prêt immobilier

Vous souhaitez connaître votre capacité d’emprunt et trouver le meilleur crédit immobilier ?
Réaliser une simulation gratuite

Photo 1 - Maison à AUSSONNE
Photo 1
Photo 2 - Maison à AUSSONNE
Photo 2
Photo 3 - Maison à AUSSONNE
Photo 3
Photo 4 - Maison à AUSSONNE
Photo 4
Photo 5 - Maison à AUSSONNE
Photo 5
Photo 6 - Maison à AUSSONNE
Photo 6
Photo 7 - Maison à AUSSONNE
Photo 7
Photo 8 - Maison à AUSSONNE
Photo 8
Photo 9 - Maison à AUSSONNE
Photo 9
Ce site est protégé par reCAPTCHA la Politique de confidentialité et les Conditions d’utilisation de Google s’appliquent.
Obtenir un prêt immobilier au meilleur taux ?

En poursuivant votre navigation sans modifier vos paramètres, vous acceptez l'utilisation de cookies susceptibles de réaliser des statistiques de visite. Cliquez ici pour plus d'informations