Bénéficiez des services de nos partenaires locaux soigneusement sélectionnés
pour vous accompagner dans votre parcours d'achat immobilier

Maison 112m² à bobigny

— Bobigny 93000 —
295 000 €
112 m² / 272 m²
4 pièces
parkingbalcon/terrassejardin

Nos partenaires locaux
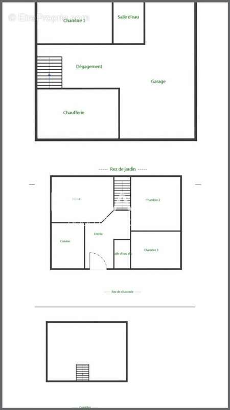
Située dans un quartier calme et bien desservi de Bobigny limite Drancy, je vous propose cette charmante maison familiale de 4 pièces de 112 m², édifiée en 1964 sur une parcelle de 272 m², elle offre un cadre de vie idéal pour une famille à la recherche d'espace et de confort. À proximité des transports (bus 234,346, 620 à quelques minutes à pied).
Environnement résidentiel paisible.

Au rez-de-chaussée, vous découvrirez : Une cuisine fermée pouvant être ouverte sur le salon.
Un séjour lumineux, deux chambres confortables, des combles aménageables offrant un beau potentiel d'agrandissement, une salle d'eau et un wc.

En rez-de-jardin, la maison propose : Une troisième chambre, parfaite pour accueillir famille ou amis, une deuxième salle d'eau.
Un garage et un grand jardin pour profiter des beaux jours complètent ce bien.

Travaux d'isolations de rafraîchissements pourront être envisagés pour remettre au goût du jour, le potentiel de cette maison est indéniable.
N'hésitez pas à me contacter pour organiser une visite !

Les informations sur les risques auxquels ce bien est exposé sont disponibles sur le site Géorisques : www.georisques.gouv.fr
Prix de vente honoraires d'agence inclus : 295 000 ¤
Prix de vente hors honoraires d'agence : 285 412,5 ¤
Honoraires charge acquéreur : 9 587,5 ¤ soit 3,36 % TTC de la valeur du bien hors honoraires

Contactez votre conseiller SAFTI : Badra FERROUDJ, Tél. : [Coordonnées masquées], E-mail : [Coordonnées masquées] - EI - Agent commercial immatriculé au RSAC de BOBIGNY sous le numéro 878 131 846.
Informations LOI ALUR :
Honoraires : 3.36 % TTC charge acquéreur.
Prix hors honoraires : 285 413 ¤. (gedeon_26118_32121120)
Voir plus

Référence: 1555876
Honoraires d'agence de 3.36% à la charge de l'acquéreur
Barème des honoraires
DPE
A
B
C
D
E
F
G
GES
A
B
C
D
E
F
G

Prêt immobilier

Vous souhaitez connaître votre capacité d’emprunt et trouver le meilleur crédit immobilier ?
Réaliser une simulation gratuite

Photo 1 - Maison à BOBIGNY
Photo 1
Photo 2 - Maison à BOBIGNY
Photo 2
Photo 3 - Maison à BOBIGNY
Photo 3
Photo 4 - Maison à BOBIGNY
Photo 4
Photo 5 - Maison à BOBIGNY
Photo 5
Photo 6 - Maison à BOBIGNY
Photo 6
Photo 7 - Maison à BOBIGNY
Photo 7
Photo 8 - Maison à BOBIGNY
Photo 8
Ce site est protégé par reCAPTCHA la Politique de confidentialité et les Conditions d’utilisation de Google s’appliquent.
Obtenir un prêt immobilier au meilleur taux ?

En poursuivant votre navigation sans modifier vos paramètres, vous acceptez l'utilisation de cookies susceptibles de réaliser des statistiques de visite. Cliquez ici pour plus d'informations