Bénéficiez des services de nos partenaires locaux soigneusement sélectionnés
pour vous accompagner dans votre parcours d'achat immobilier

Appartement 67m² à paris-15e

— Paris-15e 75015 —
549 000 €
67 m²
3 pièces
parkingascenseuraccès handicapé

Nos partenaires locaux
Paris 15 - Quartier Saint-Lambert, rue Rosenwald. À proximité immédiate des commerces, des écoles et du parc Georges-Brassens, ce secteur résidentiel calme et bien desservi offre un cadre de vie pratique et agréable.

La résidence, construite en 1975, est une petite copropriété de 10 appartements avec ascenseur. Les parties communes sont bien entretenues. Charges de copropriété : 160 ? ¤ / mois. Une cave en sous-sol est incluse.

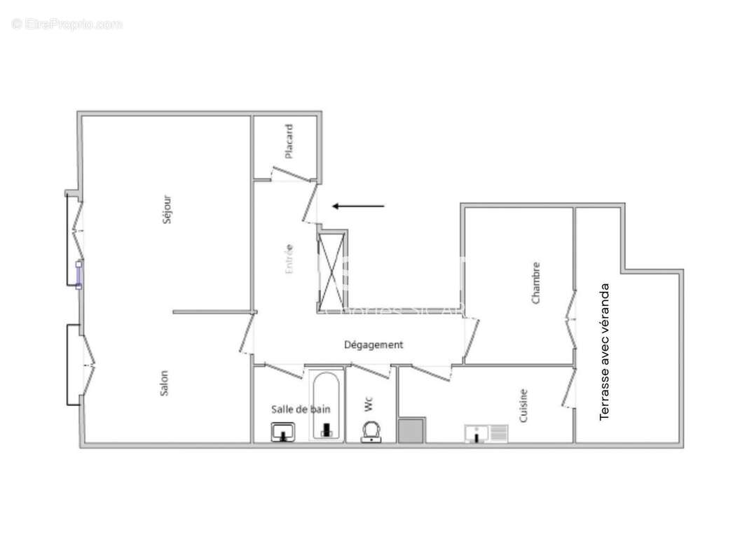
L'appartement, situé au 1 ? étage, offre 61.9 ? m² loi Carrez, complétés par une terrasse avec véranda de 10 ? m² (surface pondérée d'environ 67 ? m²). Actuellement configuré en double séjour et une chambre, il peut être réaménagé en salon et deux chambres. Traversant, lumineux, il comprend également une cuisine séparée, une salle de bains et des WC indépendants. Chauffage et eau chaude individuels au gaz. Un emplacement de parking en sous-sol, accessible aux SUV, est proposé en supplément pour 20 ? 000 ? ¤. Visite virtuelle sur demande. Joignable 24 / 7. Idéal investisseur.

Le bien comprend 2 lots, et il est situé dans une copropriété de 9 lots (les charges courantes annuelles moyennes de copropriété sont de 1920 ¤ et le syndicat des copropriétaires ne fait pas l'objet d'une procédure citée à l'article L. 721-1 du code de la construction et de l'habitation).

Les informations sur les risques auxquels ce bien est exposé sont disponibles sur le site Géorisques : www.georisques.gouv.fr
Prix de vente : 549 000 ¤
Honoraires charge vendeur

Contactez votre conseiller SAFTI : Jean-Charles SICARD, Tél. : [Coordonnées masquées], E-mail : [Coordonnées masquées] - EI - Agent commercial immatriculé au RSAC de PARIS sous le numéro 844 328 104.
Informations LOI ALUR :
Soumis au régime de copropriété.
Nombre de lots : 9.
Quote part annuelle(moyenne) : 1920 euros.
Honoraires charge vendeur. (gedeon_26118_32202906)
Voir plus

Référence: 1563837
Bien en copropriété. Nombre de lots : 9. Charges de copropriété : 1920 €.
Honoraires à la charge du vendeur.
Barème des honoraires
DPE
A
B
C
D
E
F
G
GES
A
B
C
D
E
F
G

Prêt immobilier

Vous souhaitez connaître votre capacité d’emprunt et trouver le meilleur crédit immobilier ?
Réaliser une simulation gratuite

Photo 1 - Appartement à PARIS-15E
Photo 1
Photo 2 - Appartement à PARIS-15E
Photo 2
Photo 3 - Appartement à PARIS-15E
Photo 3
Photo 4 - Appartement à PARIS-15E
Photo 4
Photo 5 - Appartement à PARIS-15E
Photo 5
Photo 6 - Appartement à PARIS-15E
Photo 6
Photo 7 - Appartement à PARIS-15E
Photo 7
Photo 8 - Appartement à PARIS-15E
Photo 8
Photo 9 - Appartement à PARIS-15E
Photo 9
Ce site est protégé par reCAPTCHA la Politique de confidentialité et les Conditions d’utilisation de Google s’appliquent.
Obtenir un prêt immobilier au meilleur taux ?

En poursuivant votre navigation sans modifier vos paramètres, vous acceptez l'utilisation de cookies susceptibles de réaliser des statistiques de visite. Cliquez ici pour plus d'informations