Appartement 27m² à montpellier

— Montpellier 34070 —
105 000 €
28 m²
1 pièce
parkingbalcon/terrasseascenseuraccès handicapé

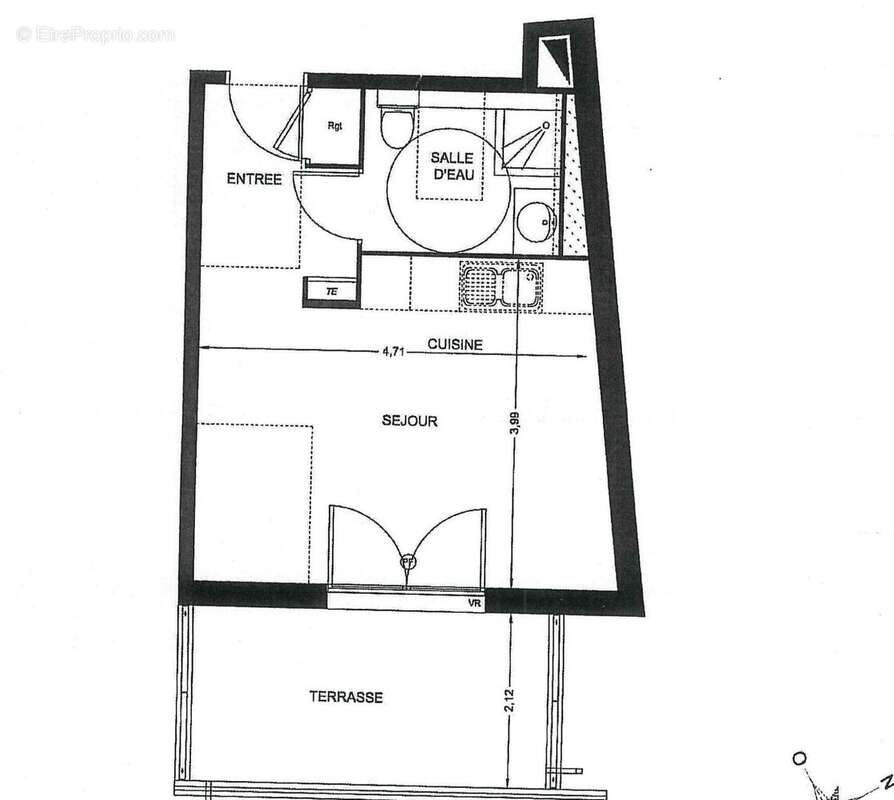
Montpellier secteur Près d'Arène Joli T1 de 27.50 m2 hab env + terrasse de 9.10 m2 situé au 4eme étage d'une résidence sécurisée et récente. T1 composé d'une entrée avec placard, d'une jolie pièce de vie lumineuse accès terrasse, d'une cuisine us aménagée et d'une salle d'eau avec wc. Cet appartement bénéficie également d'un parking privatif. Idéal 1er achat ou investissement locatif.
Bien en copropriété, pas de procédures en cours, prix de vente HAI 105 000 € les honoraires sont à la charge du vendeur. T1 actuellement occupé, Bail en cours loyer 420 € / Mois charges comprises.
Pour plus d'informations, merci de nous contacter.
« Les informations sur les risques auxquels ce bien est exposé sont disponibles sur le site Géorisques : www.georisques.gouv.fr ».

Honoraires à la charge du vendeur. Dans une copropriété de 120 lots. Quote-part moyenne du budget prévisionnel 600 €/an. Aucune procédure n'est en cours. Classe énergie C, Classe climat C Montant moyen estimé des dépenses annuelles d'énergie pour un usage standard, établi à partir des prix de l'énergie de l'année 2023 : entre 250.00 et 600.00 €. Les informations sur les risques auxquels ce bien est exposé sont disponibles sur le site Géorisques : georisques.gouv.fr.
Voir plus

Référence: VA5394-IDEACONSEIL
Bien en copropriété. Nombre de lots : 120. Charges de copropriété : 600 €.
Honoraires à la charge du vendeur.
DPE
A
B
C
D
E
F
G
GES
A
B
C
D
E
F
G

Prêt immobilier

Vous souhaitez connaître votre capacité d’emprunt et trouver le meilleur crédit immobilier ?
Réaliser une simulation gratuite

Appartement à MONTPELLIER
Appartement à MONTPELLIER
Appartement à MONTPELLIER
Appartement à MONTPELLIER
Appartement à MONTPELLIER
Ce site est protégé par reCAPTCHA la Politique de confidentialité et les Conditions d’utilisation de Google s’appliquent.
Obtenir un prêt immobilier au meilleur taux ?

En poursuivant votre navigation sans modifier vos paramètres, vous acceptez l'utilisation de cookies susceptibles de réaliser des statistiques de visite. Cliquez ici pour plus d'informations