Bénéficiez des services de nos partenaires locaux soigneusement sélectionnés
pour vous accompagner dans votre parcours d'achat immobilier

Belley - local commercial

— Belley 01000 —
165 000 €
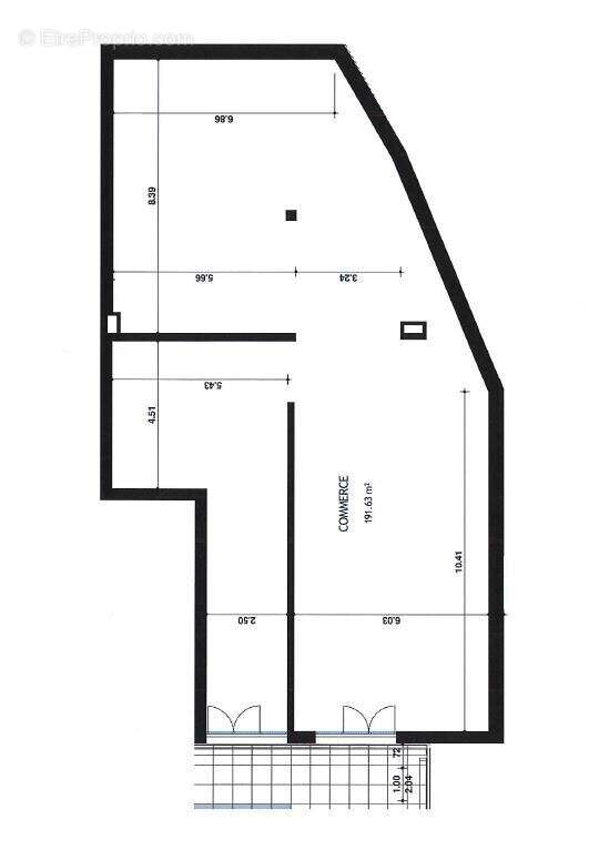
192 m²
parking

Nos partenaires locaux
À VENDRE – LOCAL COMMERCIAL NEUF – BELLEY (01300)
Un emplacement stratégique au cœur d'un quartier en plein renouveau !

Bienvenue à Belley, charmante commune de l'Ain située au cœur de la Vallée du Rhône, à proximité directe de Chambéry, Genève et Lyon grâce à la RD 504 et une gare SNCF bien desservie (liaisons vers Lyon, Genève, Paris).

C'est dans le nouveau quartier de la Vieille Porte, site emblématique entièrement requalifié par la SEMCODA, que CARRE PRO Immobilier vous propose une belle surface commerciale en rez-de-chaussée, au sein d'un ensemble neuf et moderne.

Le local :
Surface totale : 192 m² à aménager selon vos besoins
Prix de vente : à partir de 165 000 € HT
Local livré brut, pour une liberté d'aménagement complète
Idéal pour toute activité commerciale ou de services

Les atouts du bien :
Locaux neufs aux dernières normes techniques et environnementales
Accessibilité PMR
Parking public en sous sol
Quartier vivant et en plein développement mêlant habitat, commerces et activités médicales
Frais de notaire réduits (environ 2,5 %)

Une opportunité idéale pour entreprendre à Belley, dans un environnement porteur, attractif et moderne.

Contactez-nous sans attendre au [Coordonnées masquées] pour plus d'informations ou organiser une visite !
Voir plus

Référence: BELLEY_-_COMMERCE_192
Bien en copropriété.

Prêt immobilier

Vous souhaitez connaître votre capacité d’emprunt et trouver le meilleur crédit immobilier ?
Réaliser une simulation gratuite

Commerce à BELLEY
Commerce à BELLEY
Commerce à BELLEY
Commerce à BELLEY
Commerce à BELLEY
Commerce à BELLEY
Commerce à BELLEY
Commerce à BELLEY
Commerce à BELLEY
Ce site est protégé par reCAPTCHA la Politique de confidentialité et les Conditions d’utilisation de Google s’appliquent.
Obtenir un prêt immobilier au meilleur taux ?

En poursuivant votre navigation sans modifier vos paramètres, vous acceptez l'utilisation de cookies susceptibles de réaliser des statistiques de visite. Cliquez ici pour plus d'informations