Mas de prestige à cheval blanc –parc du luberon – 350 m2

— Cheval-Blanc 84460 —
730 000 €
345 m² / 1 659 m²
11 pièces
piscine

Bienvenue chez, l'agence familiale qui s'engage à un service d'exception. Découvrez une présentation soignée de ce bien : des photos professionnelles, un plan détaillé et une visite virtuelle immersive pour vous projeter. Faites confiance à notre expertise pour transformer vos projets immobiliers en réussites remarquables.

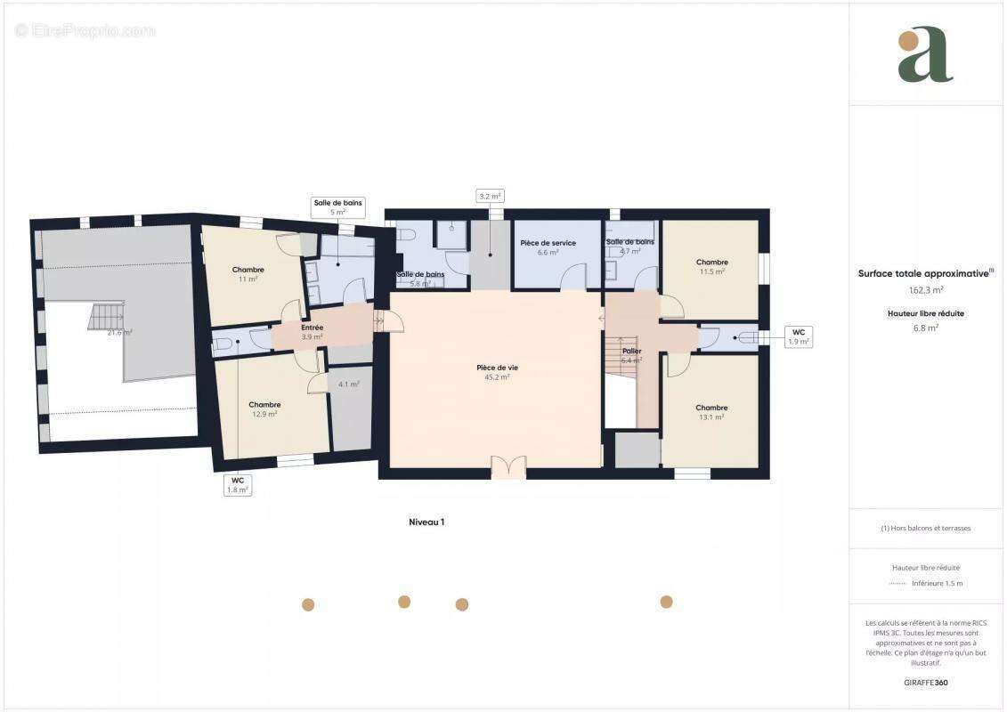
Ce mas d'exception, situé à Cheval-Blanc au cœur du Luberon, offre une surface habitable de 350 m² avec deux dépendances sur un terrain de 1600 m2. Il s'agit d'une propriété rare, mêlant authenticité et confort, idéale pour accueillir famille et amis ou envisager une activité de location saisonnière.

La bâtisse, datant en partie du XVIIème siècle, a été restaurée avec soin pour offrir des espaces de vie généreux et lumineux.

Dès l'entrée, vous serez accueilli par un vaste séjour d'environ 60 m², où se marient harmonieusement une cheminée authentique et un plafond à la française, créant une atmosphère chaleureuse et élégante.

La salle à manger, attenante à une cuisine équipée propose un espace convivial de 43 m², idéal pour partager des moments en famille ou entre amis. Depuis cet espace, vous accédez directement à une immense terrasse ombragée par un majestueux platane, offrant un cadre parfait pour profiter des journées estivales en toute tranquillité.

En complément, le rez-de-chaussée dispose d'une suite parentale de 40 m², comprenant une salle de bains privative et des toilettes séparées, garantissant confort et intimité à ses occupants.

À l'étage, un palier dessert deux espaces distincts :

Le premier se compose de deux chambres de 11,5 m² et 15,5 m², accompagnées d'une salle de bain et de toilettes.

Le second espace d'environ 48 m2 et bénéficiant d'une belle hauteur sous plafond, se prête parfaitement à l'aménagement d'un salon convivial ou d'une salle de jeux. Il dessert également deux chambres supplémentaires, une salle de bains, une salle d'eau et des toilettes séparées, offrant ainsi de multiples possibilités d'organisation selon les besoins de chacun.

Pour accueillir vos invités ou développer une activité de location saisonnière, deux appartements indépendants viennent compléter le mas, apportant flexibilité et potentiel d'accueil supplémentaire.

À l'extérieur, une piscine entourée d'un jardin paysager ajoute une touche de luxe et de détente à la propriété.

Le centre-ville, avec l'ensemble des commerces et des transports, est accessible en seulement 15 minutes à pied. Pour vos déplacements plus lointains, la gare TGV d'Avignon se situe à 40 minutes.

Les + du bien :
- Mas authentique : charme de l'ancien
- Volumes généreux
- Dépendances
- Proximité du village : commerces, écoles

À noter :
- Taxe foncière : 1929 € / an
- Coût annuel du chauffage : entre 3 850 € et 5 220 € / an
- Etat du bien : rénové
- Tout à l'égout

Consommation conventionnelle (kWhEP/m2.an) :270 ( E )
Estimation des émissions (kg CO2/m2.an) : 8 (B )
Coût de l'énergie min / max : 4930 € / 6710 €
Année de référence des prix : 2021/2022/2023
Prix de vente : 730 000 € TTC (Honoraires à la charge du vendeur)

VENTE INTERACTIVE : LE PRIX AFFICHE CORRESPOND A UN PRIX DE PREMIERE OFFRE POSSIBLE ,HONORAIRES DE NEGOCIATION INCLUS. Toutes les offres seront transmises au vendeur, lequel restera libre dans la sélection de l'offre à laquelle il entend donner suite. Aucun frais supplémentaire n'est à prévoir.

Ce bien a retenu votre intérêt ? Pour organiser la visite avec nous, rien de plus simple, prenez rendez-vous en ligne au moment qui vous convient le mieux.

Les informations sur les risques auxquels ce bien est exposé sont disponibles sur le site Géorisques : www.georisques.gouv.fr

Annonce rédigée sous la responsabilité́ éditoriale de, agent commercial (EI) immatriculé au RSAC d'Avignon sous le numéro 928034008, sans détention de fonds, agissant pour le compte de la SARL immobilier au capital de 5 000,00 € immatriculée sous le numéro de SIREN 837 704 584, titulaire de la carte professionnelle n°CPI 75[Coordonnées masquées]25 842 délivrée par la CCI de Paris Ile-de-France dont le représentant légal est, ayant son siège social au 12 rue des Halles ,75001 Paris.

Bien présenté par Agences de France par délégation.
Agences de France – SIREN : 899413603 – Titulaire de la carte T : 29[Coordonnées masquées]00009 non habilité à percevoir des fonds
Voir plus

Référence: getkey_u_499739837
Honoraires à la charge du vendeur.
DPE
A
B
C
D
E
F
G
GES
A
B
C
D
E
F
G

Prêt immobilier

Vous souhaitez connaître votre capacité d’emprunt et trouver le meilleur crédit immobilier ?
Réaliser une simulation gratuite

Maison à CHEVAL-BLANC
Maison à CHEVAL-BLANC
Maison à CHEVAL-BLANC
Maison à CHEVAL-BLANC
Maison à CHEVAL-BLANC
Maison à CHEVAL-BLANC
Maison à CHEVAL-BLANC
Maison à CHEVAL-BLANC
Maison à CHEVAL-BLANC
Maison à CHEVAL-BLANC
Maison à CHEVAL-BLANC
Maison à CHEVAL-BLANC
Maison à CHEVAL-BLANC
Maison à CHEVAL-BLANC
Maison à CHEVAL-BLANC
Maison à CHEVAL-BLANC
Maison à CHEVAL-BLANC
Maison à CHEVAL-BLANC
Maison à CHEVAL-BLANC
Maison à CHEVAL-BLANC
Maison à CHEVAL-BLANC
Maison à CHEVAL-BLANC
Maison à CHEVAL-BLANC
Maison à CHEVAL-BLANC
Maison à CHEVAL-BLANC
Ce site est protégé par reCAPTCHA la Politique de confidentialité et les Conditions d’utilisation de Google s’appliquent.
Obtenir un prêt immobilier au meilleur taux ?

En poursuivant votre navigation sans modifier vos paramètres, vous acceptez l'utilisation de cookies susceptibles de réaliser des statistiques de visite. Cliquez ici pour plus d'informations