Bénéficiez des services de nos partenaires locaux soigneusement sélectionnés
pour vous accompagner dans votre parcours d'achat immobilier

Appartement de 71 m2 - deux balcons, parking privé - hôpital pellegrin et université de bordeaux - tram a saint-augustin - rue e

— Merignac 33700 —
240 000 €
71 m²
3 pièces
parkingbalcon/terrasseascenseur

Nos partenaires locaux
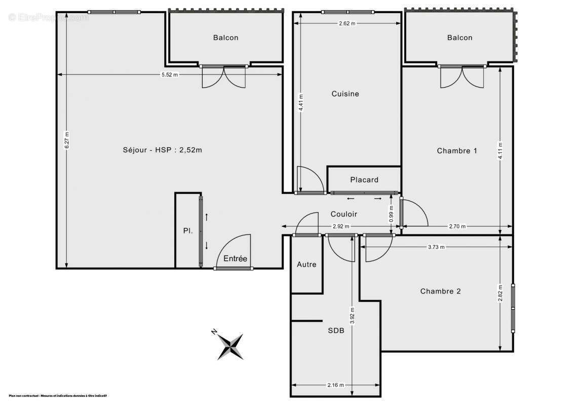
Hosman vous propose à la vente ce 3 pièces d'une surface de 71 m2 Carrez, situé Rue Emile Combes à Mérignac. Idéal investisseurs, l'appartement est proche de l'Hôpital Pellegrin et de l'Université de Bordeaux Campus Carreire.
Un locataire est présent dans l'appartement, le bail se termine le 05/28.

Profitez de ce bel appartement lumineux de 2 chambres, situé au 2ème étage, d'une superficie de 71 m2, à deux pas de l'arrêt de Tram Saint-Augustin.
Il est proche des transports, de l'hôpital Pellegrin, de l'Université de Bordeaux - Campus Carreire, ainsi que des différents commerces !

Un ascenseur est présent dans l'immeuble.
Le bien se compose : D'un séjour de 30 m2, exposé Est, avec accès sur le balcon D'un balcon de 7 m2, rattaché au séjour et est exposé Est également D'une cuisine séparée équipée et fonctionnelle de 12 m2. De 2 chambres, dont une avec balcon privatif, d'une surface de 11 m2 et 10,5 m2 D'une salle de bain, équipée d'une baignoire et d'une vasque Ce bien comporte également des toilettes séparées.

Une place de parking intérieure (box privatif) accompagne ce bien.
Une cave privative ainsi qu'un local vélo communs sont également présents.

Le système de chauffage est: Individuel - Électrique

Les charges de copropriété s'élèvent à 477 € par trimestre.
La taxe foncière est de 1320 € par an.
La copropriété compte 177 lots.
Le bien est soumis au statut de copropriété.

Un locataire est présent dans l'appartement sous un loyer de 875€H.C/Mois .

Hosman s'efforce de réinventer l'agence immobilière en offrant un service innovant et transparent aux acheteurs et aux vendeurs.
Nos frais d'agence sont de 6900 euros fixes à la charge du vendeur.

Profitez de la visite virtuelle en 3D pour vous projeter dans ce bien !
Si vous souhaitez le visiter, choisissez le créneau qui vous convient le mieux et planifiez votre visite en toute autonomie, depuis notre site hosman . co Si vous êtes un professionnel de l'immobilier (agent, mandataire ou chasseur immobilier) sachez que toutes les annonces Hosman sont ouvertes à la collaboration. N'hésitez pas à nous contacter pour en discuter.
Voir plus

Référence: a191cf
Bien en copropriété. Charges de copropriété : 155 €.
Honoraires à la charge du vendeur.
DPE
A
B
C
D
E
F
G
GES
A
B
C
D
E
F
G

Prêt immobilier

Vous souhaitez connaître votre capacité d’emprunt et trouver le meilleur crédit immobilier ?
Réaliser une simulation gratuite

Appartement à MERIGNAC
Appartement à MERIGNAC
Appartement à MERIGNAC
Appartement à MERIGNAC
Appartement à MERIGNAC
Appartement à MERIGNAC
Appartement à MERIGNAC
Appartement à MERIGNAC
Appartement à MERIGNAC
Appartement à MERIGNAC
Appartement à MERIGNAC
Appartement à MERIGNAC
Appartement à MERIGNAC
Appartement à MERIGNAC
Appartement à MERIGNAC
Ce site est protégé par reCAPTCHA la Politique de confidentialité et les Conditions d’utilisation de Google s’appliquent.
Obtenir un prêt immobilier au meilleur taux ?

En poursuivant votre navigation sans modifier vos paramètres, vous acceptez l'utilisation de cookies susceptibles de réaliser des statistiques de visite. Cliquez ici pour plus d'informations