Lyon 9 – spacieux t5 avec ascenseur privatif – double séjour – 3 chambres – 2 loggias

— Lyon-9e 69009 —
275 000 €
109 m²
4 pièces

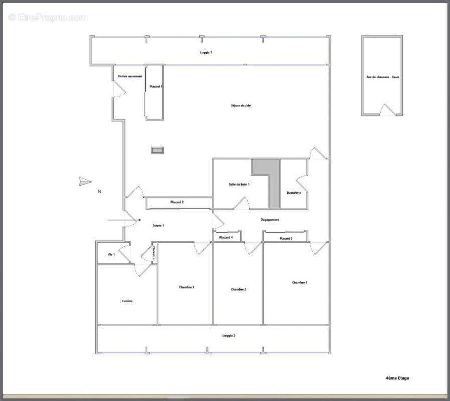
Dans un secteur calme et recherché du 9e arrondissement, ce grand appartement de type 5 situé au 4ᵉ étage offre de très beaux volumes et un confort de vie remarquable.

L'ascenseur arrive directement dans l'appartement, donnant accès à une entrée avec rangements.
La pièce de vie se compose d'un double séjour lumineux, bénéficiant d'une large surface vitrée et ouvrant sur une loggia fermée, idéale en jardin d'hiver ou espace détente.

La seconde entrée, côté palier de service, dessert un dégagement avec rangements, une cuisine moderne et équipée, ainsi qu'une buanderie avec salle d'eau, très pratique au quotidien.

La partie nuit comprend trois chambres, une salle de bains et un WC séparé.
Une seconde loggia fermée offre un espace supplémentaire pouvant servir de bureau, coin lecture ou rangement.

L'appartement traversant profite d'une triple orientation assurant luminosité et confort tout au long de la journée. Parquet, volumes généreux et larges surfaces vitrées renforcent son caractère agréable et fonctionnel.

La copropriété dispose d'un parking privatif en placement libre.

Un bien rare sur le marché, idéal pour une famille ou toute personne recherchant espace, luminosité et prestations atypiques telles que l'ascenseur privatif.

Le bien comprend 2 lots, et il est situé dans une copropriété de 57 lots (les charges courantes annuelles moyennes de copropriété sont de 2090 € et le syndicat des copropriétaires ne fait pas l'objet d'une procédure citée à l'article L. 721-1 du code de la construction et de l'habitation).

Les informations sur les risques auxquels ce bien est exposé sont disponibles sur le site Géorisques : www.georisques.gouv.fr
Prix de vente : 275 000 €
Honoraires charge vendeur

Contactez votre consultant megAgence : Laura NOUACER, Tél. : [Coordonnées masquées], E-mail : [Coordonnées masquées] - EI - Agent commercial immatriculé au RSAC de LYON 1ER ARRONDISSEMENT sous le numéro 815136676
Voir plus

Référence: 195425
Honoraires à la charge du vendeur.
DPE
A
B
C
D
E
F
G
GES
A
B
C
D
E
F
G

Prêt immobilier

Vous souhaitez connaître votre capacité d’emprunt et trouver le meilleur crédit immobilier ?
Réaliser une simulation gratuite

Appartement à LYON-9E
Appartement à LYON-9E
Appartement à LYON-9E
Appartement à LYON-9E
Appartement à LYON-9E
Appartement à LYON-9E
Appartement à LYON-9E
Appartement à LYON-9E
Appartement à LYON-9E
Appartement à LYON-9E
Appartement à LYON-9E
Appartement à LYON-9E
Ce site est protégé par reCAPTCHA la Politique de confidentialité et les Conditions d’utilisation de Google s’appliquent.
Obtenir un prêt immobilier au meilleur taux ?

En poursuivant votre navigation sans modifier vos paramètres, vous acceptez l'utilisation de cookies susceptibles de réaliser des statistiques de visite. Cliquez ici pour plus d'informations