Bénéficiez des services de nos partenaires locaux soigneusement sélectionnés
pour vous accompagner dans votre parcours d'achat immobilier

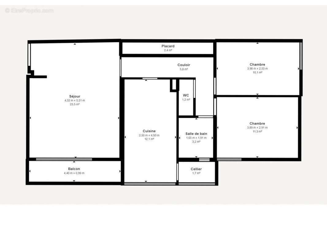
Appartement de 3 pièces de 67 m² situé à rillieux-la-pape

— Rillieux-La-Pape 69140 —
145 000 €
67 m²
3 pièces
balcon/terrasseascenseur

Nos partenaires locaux
Découvrez cet appartement lumineux de 67 m² situé au 9ème étage d'une résidence calme à Rillieux-la-Pape. Il se compose d'une pièce de vie ouverte sur un balcon offrant une vue splendide sur la chaîne des Alpes, d'une cuisine fermée, de deux chambres, d'une salle de bains et d'un WC indépendant. L'atout supplémentaire est la présence d'un cellier pour un rangement optimal.

L'appartement bénéficie d'un environnement agréable, à proximité des arrêts de bus C2, C5, 59 et Z8, facilitant vos déplacements. Vous trouverez également des écoles.

Commodités et petits commerces sont accessibles à quelques minutes à pied, rendant le quotidien très pratique.

Caractéristiques techniques

- Taxe foncière : 100 euros
- Charges de copropriété : 177 euros / mois
- DPE : C
- Mode de chauffage : collectif
- Mode de distribution de l'eau : collectif

Les informations sur les risques auxquels ce bien est exposé sont disponibles sur le site Géorisques : (http://www.georisques.gouv.fr/)

Intéressés ? Contactez Zefir pour visiter ce bien.
Voir plus

Référence: 885d78ae-ec55-4b53-a693-49926b
Honoraires à la charge du vendeur.
DPE
A
B
C
D
E
F
G
GES
A
B
C
D
E
F
G

Prêt immobilier

Vous souhaitez connaître votre capacité d’emprunt et trouver le meilleur crédit immobilier ?
Réaliser une simulation gratuite

Appartement à RILLIEUX-LA-PAPE
Appartement à RILLIEUX-LA-PAPE
Appartement à RILLIEUX-LA-PAPE
Appartement à RILLIEUX-LA-PAPE
Appartement à RILLIEUX-LA-PAPE
Appartement à RILLIEUX-LA-PAPE
Appartement à RILLIEUX-LA-PAPE
Appartement à RILLIEUX-LA-PAPE
Appartement à RILLIEUX-LA-PAPE
Appartement à RILLIEUX-LA-PAPE
Appartement à RILLIEUX-LA-PAPE
Ce site est protégé par reCAPTCHA la Politique de confidentialité et les Conditions d’utilisation de Google s’appliquent.
Obtenir un prêt immobilier au meilleur taux ?

En poursuivant votre navigation sans modifier vos paramètres, vous acceptez l'utilisation de cookies susceptibles de réaliser des statistiques de visite. Cliquez ici pour plus d'informations