Bénéficiez des services de nos partenaires locaux soigneusement sélectionnés
pour vous accompagner dans votre parcours d'achat immobilier

Maison 5 pieces 3 chambres

— Moissy-Cramayel 77550 —
330 000 €
115 m² / 460 m²
5 pièces
parkingbalcon/terrasse

Nos partenaires locaux
****Maison rénovée – Quartier des Grès à Moissy-Cramayel – Calme & Confort****

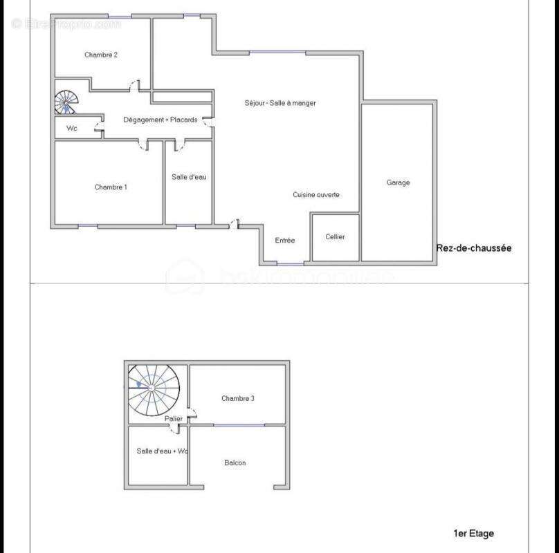
Venez découvrir cette jolie maison entièrement rénovée, idéalement située dans le recherché quartier des Grès, à Moissy-Cramayel. Un environnement calme, familial et pratique au quotidien.

Dès l'entrée, vous apprécierez une spacieuse pièce de vie ouverte de pres de 50m², lumineuse grâce à sa grande baie vitrée donnant sur le jardin. L'espace se compose d'un salon chaleureux avec poêle à bois, d'une cuisine américaine équipée, ainsi que d'une buanderie attenante pour plus de praticité.

Un coin salle à manger complète le rez-de-chaussée : il peut facilement être transformé en quatrième chambre selon vos besoins. Depuis le salon, vous profitez d'un accès direct au garage, lequel communique avec une cuisine d'été donnant sur l'extérieur.

Le couloir dessert ensuite deux chambres, dont une avec placard intégré, une salle d'eau moderne, ainsi qu'un WC séparé.

À l'étage, la maison offre un véritable espace intimiste avec une suite parentale comprenant une chambre, sa terrasse privative, ainsi qu'une salle d'eau avec WC.

Un bien complet, fonctionnel, rénové avec goût, idéal pour une famille recherchant confort et tranquillité dans un cadre privilégié.

Cette annonce référence 311978 vous est présentée par votre agent commercial BSK Immobilier CHRISTOPHER BADETS (EI) immatriculé au RSAC de MELUN (77000) sous le numéro 89[Coordonnées masquées]19.

Prix du bien : 330 000,00 €
Les honoraires d'agence sont à la charge du vendeur.

Les informations sur les risques auxquels ce bien est exposé sont disponibles sur le site Géorisques : www.georisques.gouv.fr
Voir plus

Référence: 311978
Honoraires à la charge du vendeur.

Prêt immobilier

Vous souhaitez connaître votre capacité d’emprunt et trouver le meilleur crédit immobilier ?
Réaliser une simulation gratuite

Maison à MOISSY-CRAMAYEL
Maison à MOISSY-CRAMAYEL
Maison à MOISSY-CRAMAYEL
Maison à MOISSY-CRAMAYEL
Maison à MOISSY-CRAMAYEL
Maison à MOISSY-CRAMAYEL
Maison à MOISSY-CRAMAYEL
Maison à MOISSY-CRAMAYEL
Maison à MOISSY-CRAMAYEL
Maison à MOISSY-CRAMAYEL
Maison à MOISSY-CRAMAYEL
Maison à MOISSY-CRAMAYEL
Ce site est protégé par reCAPTCHA la Politique de confidentialité et les Conditions d’utilisation de Google s’appliquent.
Obtenir un prêt immobilier au meilleur taux ?

En poursuivant votre navigation sans modifier vos paramètres, vous acceptez l'utilisation de cookies susceptibles de réaliser des statistiques de visite. Cliquez ici pour plus d'informations