Maison à vendre 23 pièces - vitry sur seine (94) - maison de maître à rénover - 470 m2 - 1 627 500 € honoraires d'agence inclus

— Vitry-Sur-Seine 94400 —
1 627 500 €
470 m²
23 pièces

POUR UNE OPERATION D'INVESTISSEMENT/DE PROMOTION

Dans un quartier en plein essor, à vendre hôtel particulier/maison de Maître à rénover totalement.
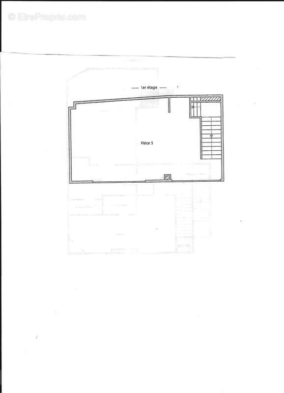
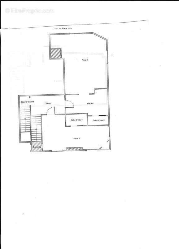
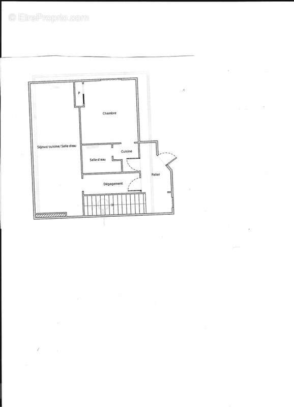
Travaux importants à prévoir : 470 m2 de surface
Ou possibilité de réaliser une opération de promotion immobilière telle que la réalisation d'un hôtel ou d'une résidence étudiante.

Auparavant: Maison aménagée en 22 studios plus un 2 pièces.

Exploité il y a quelques années, cet ensemble immobilier générait 180 000 € par an de loyer, soit une valorisation des murs à 2 250 000 € pour un rendement brut de 8 %.

N'hésitez pas à me contacter pour de plus amples informations et/ou organiser une visites !
Les honoraires sont à la charge du vendeur.
Les informations sur les risques auxquels ce bien est exposé sont disponibles sur le site Géorisques : www. georisques. gouv. fr.

Réseau Immobilier CAPIFRANCE - Votre agent commercial (RSAC N°835 035 908 - Greffe de PARIS 4EME ARRONDISSEMENT) François LERAT Entrepreneur Individuel [Coordonnées masquées] - Réf.931501
Voir plus

Référence: 340934911276
Honoraires à la charge du vendeur.

Prêt immobilier

Vous souhaitez connaître votre capacité d’emprunt et trouver le meilleur crédit immobilier ?
Réaliser une simulation gratuite

Maison à VITRY-SUR-SEINE
Maison à VITRY-SUR-SEINE
Maison à VITRY-SUR-SEINE
Maison à VITRY-SUR-SEINE
Maison à VITRY-SUR-SEINE
Maison à VITRY-SUR-SEINE
Ce site est protégé par reCAPTCHA la Politique de confidentialité et les Conditions d’utilisation de Google s’appliquent.
Obtenir un prêt immobilier au meilleur taux ?

En poursuivant votre navigation sans modifier vos paramètres, vous acceptez l'utilisation de cookies susceptibles de réaliser des statistiques de visite. Cliquez ici pour plus d'informations