Appartement à vendre t1 + parking (35) rennes beaulieu fougeres longchamps

— Rennes 35700 —
116 000 €
26 m²
1 pièce
parkingjardin

Studio T1 Rennes Beaulieu – Idéal investisseur ou logement étudiant

À deux pas du campus Beaulieu – Université Rennes 1, des classes préparatoires Joliot-Curie et Chateaubriand, et au cœur du quartier Gayeulles–Longchamps, ce studio offre un emplacement recherché par les étudiants et parents souhaitant sécuriser un logement proche des grandes écoles (INSA, IUT, ENSCR, ESIR, Supélec…).

Situé à 500 m du métro B (stations Joliot-Curie / Chateaubriand) et desservi par les lignes C1, 9, 70 et 50, il permet un accès rapide au centre-ville, aux commerces et au parc des Gayeulles. Une localisation idéale pour un investissement locatif à forte demande.

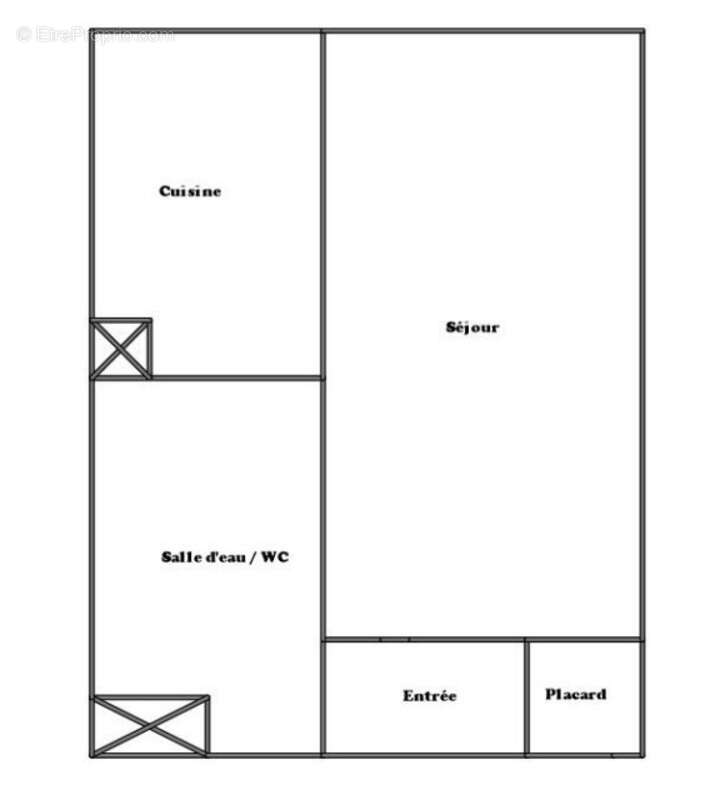
Le studio, à rafraîchir, se compose d'une entrée avec placard, d'une salle d'eau avec WC, et d'une pièce de vie lumineuse avec kitchenette séparée.
Implanté en fond d'allée, il bénéficie d'un environnement au calme, rare dans ce secteur étudiant animé.

Un parking aérien privé complète le bien – un atout décisif près du campus.

Eau et chauffage inclus dans les charges. Travaux d'Isolation thermique par l'extérieur et VMC en 2017. Chaudière collective gaz de 2014, local vélos et fibre optique.

Libre à la vente, idéal parents d'étudiant ou jeune primo-accédant
Une opportunité pour un projet LMNP ou un investissement rentable à Rennes.

Conseillère en immobilier depuis 19 ans, je suis à votre écoute pour une visite ou une étude locative.
Nombre de lots de la copropriété : 54, Montant moyen annuel de la quote-part de charges (budget prévisionnel)(eau, chauffage, syndic..) : 1100€ soit 91€ par mois. Les honoraires d'agence sont à la charge de l'acquéreur, soit 5,45% TTC du prix hors honoraires.
Les informations sur les risques auxquels ce bien est exposé sont disponibles sur le site Géorisques : www. georisques. gouv. fr.

Réseau Immobilier CAPIFRANCE - Votre agent commercial (RSAC N°851 460 212 - Greffe de RENNES) Gaëlle BRIEND Entrepreneur Individuel [Coordonnées masquées] - Réf.931491
Voir plus

Référence: 340930633461
Bien en copropriété. Nombre de lots : 54. Charges de copropriété : 91 €.
DPE
A
B
C
D
E
F
G
GES
A
B
C
D
E
F
G

Prêt immobilier

Vous souhaitez connaître votre capacité d’emprunt et trouver le meilleur crédit immobilier ?
Réaliser une simulation gratuite

Appartement à RENNES
Appartement à RENNES
Appartement à RENNES
Appartement à RENNES
Appartement à RENNES
Appartement à RENNES
Appartement à RENNES
Ce site est protégé par reCAPTCHA la Politique de confidentialité et les Conditions d’utilisation de Google s’appliquent.
Obtenir un prêt immobilier au meilleur taux ?

En poursuivant votre navigation sans modifier vos paramètres, vous acceptez l'utilisation de cookies susceptibles de réaliser des statistiques de visite. Cliquez ici pour plus d'informations