Local professionnel de 185m2 - tréguier

— Treguier 22220 —
325 000 €
185 m²

Action Immobilière vous propose, sur la commune de Tréguier (22220), ce local professionnel de 185 m2 de plain-pied, facilement réaménageable et offrant un fort potentiel d’aménagement.
Ce bien se prête à de nombreuses activités : artisanales, commerciales, libérales, ou encore à un changement de destination (activité différente ou transformation en habitation, accepté par l’urbanisme).
Les aménagements intérieurs sont aisés grâce aux cloisons sèches et aux arrivées/évacuations sanitaires déjà prévues pour l'installation d'une salle de bain.
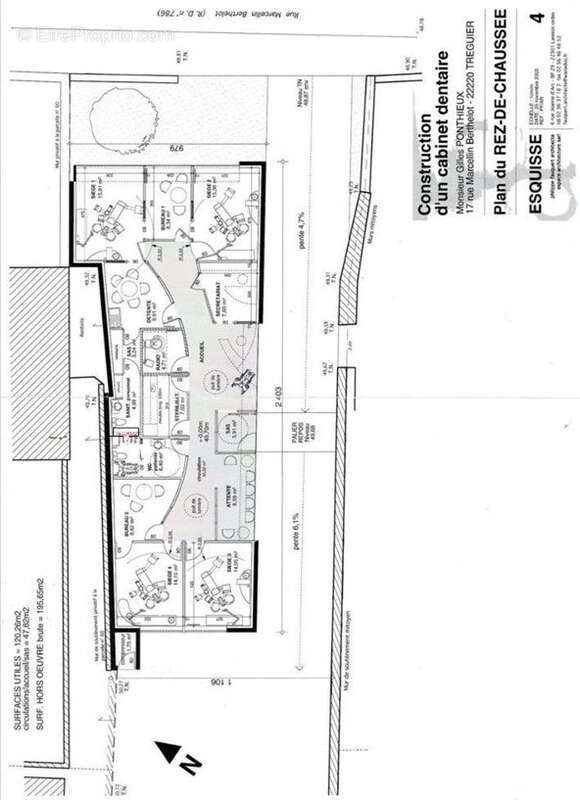
Le local comprend (agencement actuel) :


5 bureaux de 8 à 13 m2


Un espace d’entrée / accueil / salle d’attente avec couloir de distribution


Un WC patientèle avec lave-mains


Une pièce de stérilisation


Une salle de radiologie dentaire


Une pièce de stockage avec WC personnel


Une salle de pause avec kitchenette


Deux salles de soins dentaires


Extérieurs :


3 à 5 places de parking privées


Grand parking public gratuit à proximité immédiate


Terrain de 860 m2 (zone UC)


Équipements et informations complémentaires :


Construction parasismique sous membrane


Bâtiment en béton banché toit plat, construit en 2005


Ancien cabinet : dentaire kiné ophtalmo (activités arrêtées)


Chauffage et eau chaude : chaudière gaz à accumulation haut rendement


VMC double flux avec gestionnaire


Compresseur à air extérieur + réseau d’air comprimé


Distribution informatique et TV complète


Tableau électrique protégé


Assainissement collectif (tout-à-l’égout)


Borne d'entrée escamotable, automatique et télécommandée


Accès PMR total


Travaux d’étanchéité de membrane à prévoir


DPE : C / GES : C


Possibilité d’aménager en habitation.


Localisation :
Idéalement situé en face du port de plaisance de Tréguier, offrant un cadre idyllique et une visibilité parfaite pour une activité professionnelle, grâce à la proximité immédiate d’un axe très fréquenté.


15 min de Lannion et Paimpol


Moins de 30 min de Guingamp


Un bien à fort potentiel à visiter sans tarder !
Prix de vente net vendeur : 312 000€
Prix de vente frais d’agence inclus : 325 000€ (soit 4.17% d’honoraires charge acquéreur).
Référence annonce : M248
Pour plus d’informations, contactez Matthias THOMAS au [Coordonnées masquées] ou à [Coordonnées masquées].
Les informations sur les risques auxquels ce bien est exposé sont disponibles sur le site Géorisques : www.georisques.gouv.fr
Action Immobilière, Adresse : 11 rue de Buzulzo, quartier de la Gare, 22 300 Lannion, Tel : [Coordonnées masquées]. Tous nos biens sont sur notre site internet action immobilière. Depuis 30 ans sur la Bretagne, une agence familiale à l’accueil chaleureux et des négociateurs sérieux et compétents pour vous épauler dans votre recherche et vous accompagner tout au long du processus d’achat (visites, conseils, négociation, signature et suivi du compromis avec l’étude notariée).
Voir plus

Honoraires d'agence de 4.17% à la charge de l'acquéreur
DPE
A
B
C
D
E
F
G
GES
A
B
C
D
E
F
G

Prêt immobilier

Vous souhaitez connaître votre capacité d’emprunt et trouver le meilleur crédit immobilier ?
Réaliser une simulation gratuite

Commerce à TREGUIER
Commerce à TREGUIER
Commerce à TREGUIER
Commerce à TREGUIER
Commerce à TREGUIER
Commerce à TREGUIER
Commerce à TREGUIER
Commerce à TREGUIER
Commerce à TREGUIER
Commerce à TREGUIER
Commerce à TREGUIER
Commerce à TREGUIER
Commerce à TREGUIER
Commerce à TREGUIER
Commerce à TREGUIER
Commerce à TREGUIER
Commerce à TREGUIER
Commerce à TREGUIER
Commerce à TREGUIER
Commerce à TREGUIER
Ce site est protégé par reCAPTCHA la Politique de confidentialité et les Conditions d’utilisation de Google s’appliquent.
Obtenir un prêt immobilier au meilleur taux ?

En poursuivant votre navigation sans modifier vos paramètres, vous acceptez l'utilisation de cookies susceptibles de réaliser des statistiques de visite. Cliquez ici pour plus d'informations