Bénéficiez des services de nos partenaires locaux soigneusement sélectionnés
pour vous accompagner dans votre parcours d'achat immobilier

2 pieces - hauteurs de grasse - vue mer

— Grasse 06130 —
165 000 €
38 m²
2 pièces
ascenseuraccès handicapé

Nos partenaires locaux
EXCLUSIVITÉ
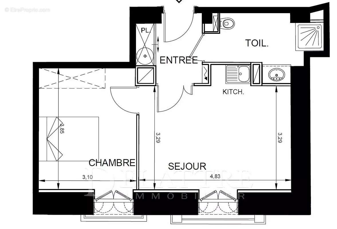
Dans une petite Résidence Récente " LE BELVEDERE" , à pieds de l'institut FÉNELON avec vue Époustouflante à 180° sur la Mer, Coquet 2 Pièces d'env. 37 m².
L'appartement profite d'un séjour avec cuisine américaine équipée (four, plaques, frigo et L. Vaisselle), 1 chambre avec placard, salle de douche avec toilettes.
Espace commun avec bancs face à la mer...
2 places de parkings privatives en enfilade.
La Résidence offre des prestations de standing (sols en grès, vidéophone, architecture respectueuse, portes palières iso-blindées serrure 5 points, jardins ...)
123 € charges/mois (eau froide inclus)
14 Lots principaux
Honoraires charge vendeur

Les informations sur les risques auxquels ce bien est exposé sont disponibles sur le site Géorisques : georisques.gouv.fr
Voir plus

Référence: 83340510
DPE
A
B
C
D
E
F
G
GES
A
B
C
D
E
F
G

Prêt immobilier

Vous souhaitez connaître votre capacité d’emprunt et trouver le meilleur crédit immobilier ?
Réaliser une simulation gratuite

Appartement à GRASSE
Appartement à GRASSE
Appartement à GRASSE
Appartement à GRASSE
Appartement à GRASSE
Appartement à GRASSE
Appartement à GRASSE
Appartement à GRASSE
Appartement à GRASSE
Appartement à GRASSE
Appartement à GRASSE
Ce site est protégé par reCAPTCHA la Politique de confidentialité et les Conditions d’utilisation de Google s’appliquent.
Obtenir un prêt immobilier au meilleur taux ?

En poursuivant votre navigation sans modifier vos paramètres, vous acceptez l'utilisation de cookies susceptibles de réaliser des statistiques de visite. Cliquez ici pour plus d'informations